4 Bedroom Detached
£5,250 PCM
Kirdford, Billingshurst, RH14

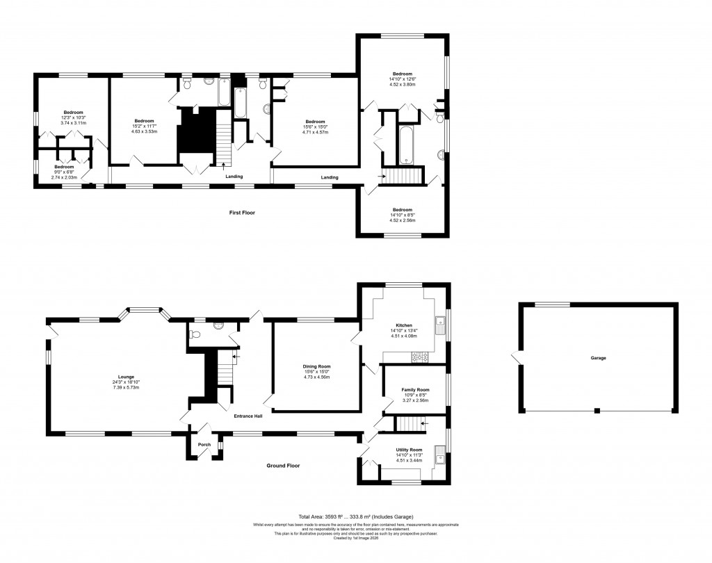
Floorplans For Kirdford, Billingshurst, RH14
EPC Graph for Kirdford, Billingshurst, RH14

Description


Beautifully presented Grade II listed country house set on a quiet lane with far-reaching views over adjoining paddocks and open countryside. Recently redecorated and updated with a new kitchen, refreshed bathrooms and a new utility/boot room, combining period charm with modern convenience. Private driveway with detached double garage and generous parking, along with landscaped gardens enjoying a peaceful rural setting. Spacious and flexible accommodation includes characterful reception rooms with exposed beams and open fireplace, well-proportioned kitchen with Rangemaster, study/snug, and practical utility. Upstairs offers a vaulted principal bedroom with en-suite, further en-suite double bedroom with walk-in wardrobe, two additional bedrooms with Jack and Jill bathroom, plus study/dressing room. A rare and idyllic country home. EPC TBC.

Type of Property: Detached
Construction- Solid Brick
Construction type roof- Pitched, tiled
Sewerage: Cesspit
Water- Mains, Metered
Heating Type- Oil Boiler
Utility Information - Electric and Water and Oil
Parking- ample off road parking
Building Safety: None declared.
Restrictions (Lease, Building Status, Covenants): Grade II listed
Flood Risk - Low risk
Coastal Erosion- Low risk
Property accessibility/adaptations- No
Coalfield or mining area- No
Broadband: Broadband (Download speed available from Ofcom or your provider)
Mobile Reception - Multiple Networks Available (Information available from Ofcom)
Planning Permission or Proposal for development (Local authority postcode search) - Planning applications nearby please see local authority website for further information.

Reception 1

Reception 2

Hallway

Cloakroom

Kitchen

Bedroom 1

Bedroom 2

Bedroom 3

Landing

Bedroom 4

Bathroom

Over One Acre Garden

Garage space for 2 cars.

Garden

Parking

Local Area
Storrington lies nestled at the foot of the South Downs National Park, midway along the South Downs Way and set just off the A24. Many of the homes here have wonderful views and the village has a conservation area just off its bustling high street which has lots of specialist shops as well as a sizeable Waitrose. With nearby vineyards at Nutbourne and Nyetimber, two local golf clubs, a gliding club and a diverse range of properties including bungalows, family homes and thatched Wells cottages designed by Reginald Wells in the 1920s, Storrington and its surrounding villages are amongst the most attractive in West Sussex.
Utility Room
Utility Room
Reception 1
Reception 1
Tenancy Information

Reference: henryadams-432665

Request a viewing for this property

Simply fill out the form below or alternatively call us on 020 7839 0888

* Mandatory fields