3 Bedroom Bungalow
£300,000
The Bridgeway, Selsey, PO20

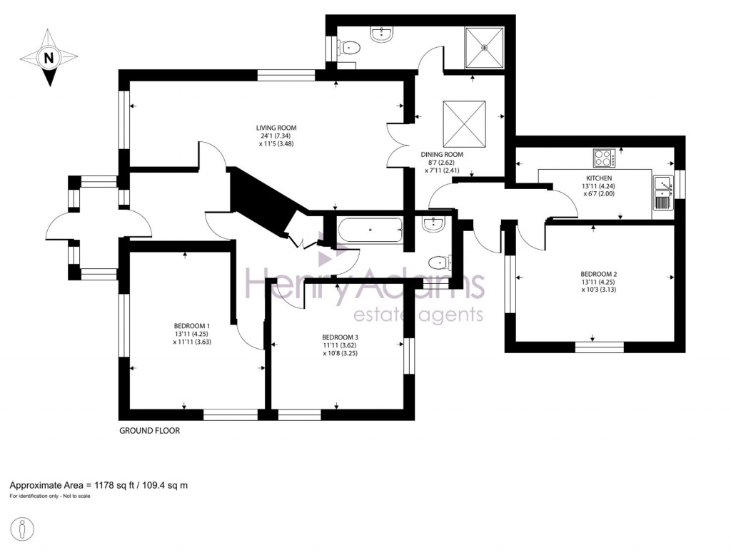
Floorplans For The Bridgeway, Selsey, PO20

Description


This quirky and individual semi-detached bungalow is offered to the market for the first time since the late 1980s, presenting a rare opportunity to acquire a unique home in a sought after road. Believed to be of non-standard construction (timber framed), requiring modernisation and updating the property is available to cash buyers only due to the nature of its build. The interior comprises three double bedrooms, offering ample accommodation for families or those seeking versatile living space. There are two bathrooms, providing convenience for residents and guests alike. The home is offered with no onward chain, ensuring a straightforward purchase process. The property also benefits from a generous driveway with space for four to five cars and a detached double garage. With its distinctive character and flexible layout, this bungalow represents a fantastic opportunity for buyers seeking something out of the ordinary.

The outside space is equally impressive, with gardens that wrap around two sides of the home and the main area situated to the rear. The gardens are mainly laid to lawn, interspersed with mature flower and shrub borders and beds, creating a private and tranquil setting. A paved seating area provides the perfect spot for outdoor dining or relaxation. Behind the double garage, there is an additional section of garden designed to mimic a wild flower meadow, further enhancing the property’s appeal for nature lovers. The driveway approaches the property as a single track, offering parking for two to three cars, before widening into a double driveway with further parking that leads directly to the detached double garage. The garage itself is in need of complete overhaul or renewal but currently features twin double wooden barn style doors, adding to the property’s character. This extensive outside space, together with the ample parking and garage facilities, makes the property particularly attractive for families or those who enjoy gardening and outdoor living.

Reference: fe5700fc-5700-44a8-b282-cba0161b8241

Request a viewing for this property

Simply fill out the form below or alternatively call us on 020 7839 0888

* Mandatory fields