3 Bedroom House
£420,000
Stocks Lane, East Wittering, PO20

Floorplans For Stocks Lane, East Wittering, PO20

Description


52 Stocks Lane presents a fantastic opportunity to acquire a charming detached home located just moments from East Wittering village. Offered to the market with the benefit of no forward chain, there is scope for modernisation, allowing you to add your own personal touch to your next home.

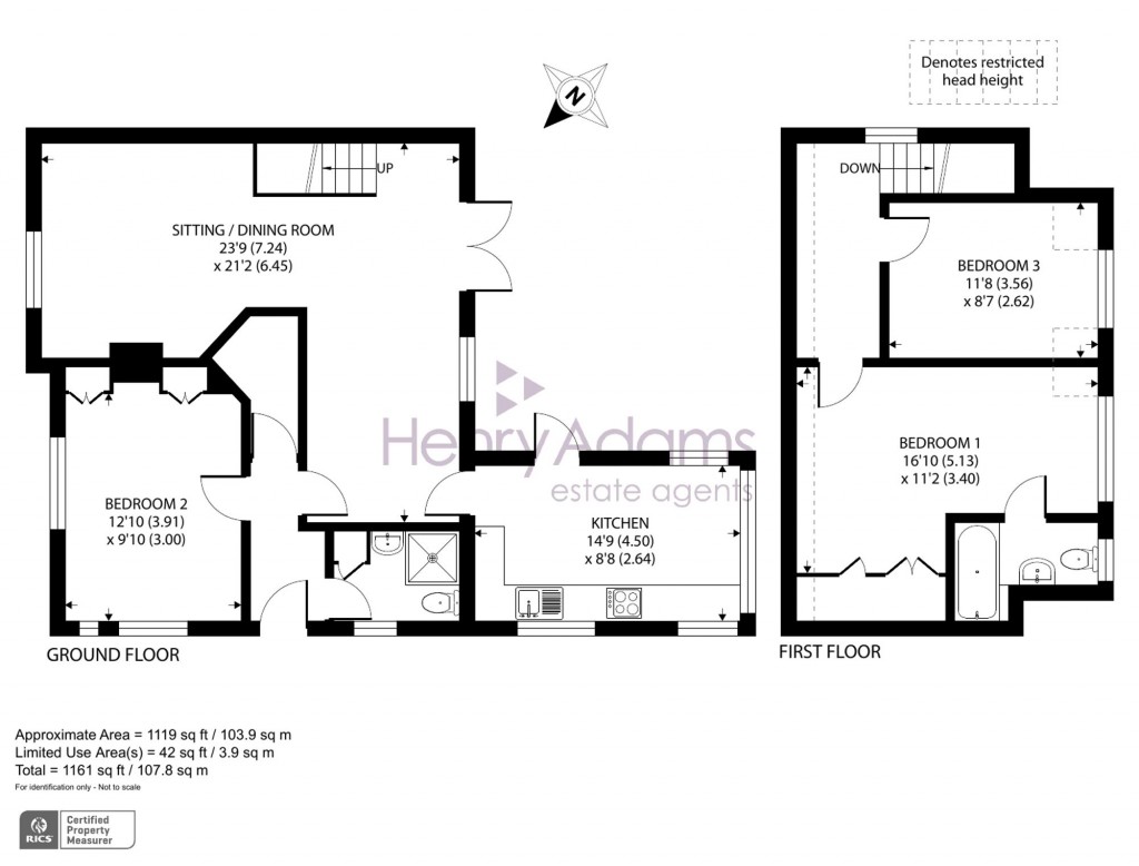
The ground floor features a spacious L-shaped sitting/dining room that serves as the heart of the home. With a cosy fireplace as a focal point, this room is perfect for both relaxing and entertaining. The kitchen, while functional, offers generous storage and is flooded with natural light, overlooking the south-facing rear garden. Also on the ground floor is a generously sized double bedroom with built-in wardrobes, providing flexibility as a guest room, home office, or additional living space. Finally, completing the downstairs accommodation is a convenient shower room.

Stairs from the living room lead to the first floor, where you will find the spacious principal suite, complete with an en-suite bathroom and built-in wardrobes. An additional bedroom on this floor is ideal for children or guests, offering comfortable accommodation.

Outside, the property boasts a south-facing rear garden that is mainly laid to lawn. The addition of patio areas provides a perfect spot for enjoying the sunshine throughout the day. A carport and driveway to the front of the property offer convenient off-road parking.

Reference: fb48c8dd-c004-4acb-9c65-5533f66bd908

Request a viewing for this property

Simply fill out the form below or alternatively call us on 020 7839 0888

* Mandatory fields