4 Bedroom House
£695,000
Birdham Road, Chichester, PO19

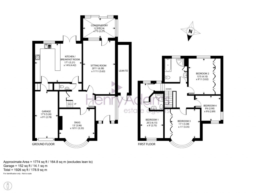
Floorplans For Birdham Road, Chichester, PO19

Description


A detached house backing on to open farmland.

This extended detached home offers spacious and highly versatile accommodation, perfectly suited to modern family living. The property features a sitting room, snug and a light-filled conservatory, providing flexible reception space for both relaxation and entertaining. At the heart of the home is an impressive open-plan kitchen and dining room, ideal for everyday living and hosting guests.

Upstairs, there are four well-proportioned bedrooms, including a bedroom with en-suite shower room, complemented by a stylish family bathroom with separate shower cubicle.

Outside, the property enjoys a generous, well-maintained rear garden, perfect for outdoor dining and family enjoyment, along with the added benefits of a garage and private driveway parking.

Early viewing is highly recommended to fully appreciate all this superb home has to offer.

Chichester District Council - 25/26 Tax Band F £3,305.41 EPC-D

Directions - Proceed south over the A27 onto the A286 Stockbridge Road, signposted to Birdham and Wittering. Proceed over the mini roundabout and the property is on the left after approximately 0.16 of a mile, opposite the turn left to The Meadows. What3words - stuck.arch.lions

Reference: f878316b-7b27-4c3d-b74e-055b8d81c654

Request a viewing for this property

Simply fill out the form below or alternatively call us on 020 7839 0888

* Mandatory fields