2 Bedroom Bungalow
£395,000
Grafton Road, Selsey, PO20

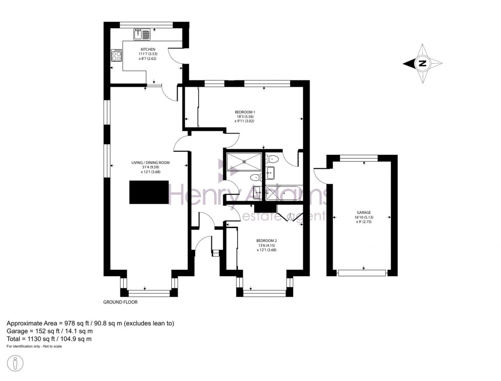
Floorplans For Grafton Road, Selsey, PO20

Description


Offered to the market is this charming double gabled detached character bungalow close to both local amenities and the beach. The property features two double bedrooms, both of which benefit from built in wardrobes and the main one a dressing area, providing ample storage and a sense of comfort. The main bedroom also enjoys the added luxury of an en-suite bathroom, while a well appointed family shower room serves the rest of the accommodation.

The layout includes two reception rooms, ideal for relaxing or entertaining guests, with natural light streaming through the double fronted bay windows that enhance the home’s charming character and kerb appeal. The kitchen is arranged to maximise functionality and although some might suggest requires updating, its perfectly serviceable for every-day living. Practicality is further enhanced by off road parking to one side of the home along with a driveway and a garage on the opposing side, offering plenty of space for vehicles and additional storage. The boiler was replaced approximately four years ago and remains under warranty, providing peace of mind regarding energy efficiency and future maintenance. The property’s interior is designed to offer a seamless flow between rooms, creating a welcoming atmosphere throughout. This bungalow is within easy reach of a wide range of shops, cafes and essential services, ensuring daily conveniences are always close at hand. The nearby beach provides the perfect setting for leisurely walks and relaxation by the sea. The private rear garden benefits from an easterly aspect, ensuring plenty of morning sunlight and a tranquil setting for outdoor enjoyment. Whether you are looking to downsize, relocate closer to the coast or simply enjoy the unique charm and practicality of a bungalow, this property represents a rare and exciting opportunity.

Reference: eafde9c6-bb12-448f-a03c-3adb14ab0224

Request a viewing for this property

Simply fill out the form below or alternatively call us on 020 7839 0888

* Mandatory fields