4 Bedroom House
£575,000
Stockbridge Gardens, Chichester, PO19

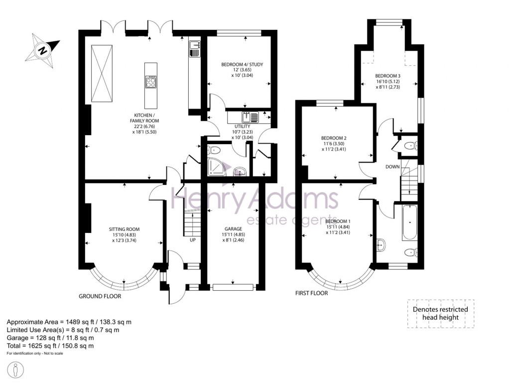
Floorplans For Stockbridge Gardens, Chichester, PO19

Description


A well-presented house in the Stockbridge area of Chichester.

Extended semi-detached house in a popular residential location offering spacious and versatile accommodation ideal for modern family living. The property features a comfortable sitting room and an impressive open plan kitchen/family room, perfect for everyday living and entertaining. There is also a useful utility room, ground floor shower/WC, and a ground floor study which could also be used as an additional bedroom. To the first floor are three well-proportioned bedrooms, a family bathroom/WC and an additional separate WC.

Externally, the property benefits from a driveway leading to a garage and a west-facing rear garden, ideal for enjoying afternoon and evening sun. Viewing is highly recommended.

Chichester District Council - 25/26 Tax Band D £2,288.36 EPC-C

Directions - Proceed south out of Chichester on the A286 (signposted to The Witterings). Proceed over the mini roundabout and take the first turning on the right into Stockbridge Gardens. Pass Gordon Avenue on your left and number 33 is a short distance after on the left. What3words - aware.cards.space

Reference: e8be19d5-24a0-48c8-9669-0d998486ea43

Request a viewing for this property

Simply fill out the form below or alternatively call us on 020 7839 0888

* Mandatory fields