5 Bedroom House
£950,000
Amberley Road, Storrington, RH20

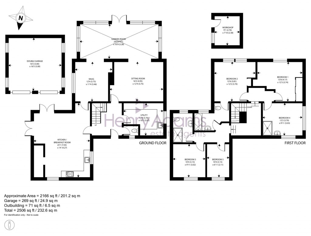
Floorplans For Amberley Road, Storrington, RH20

Description


This spacious and well-presented five bedroom detached house offers over 2,000 sq ft of versatile accommodation, ideal for an extended family seeking comfort and convenience close to the village centre. The heart of the home is the generous kitchen, featuring a range cooker, walk-in larder, and two sets of double doors leading outside, with ample scope for personalisation and modernisation.

The reception spaces are particularly inviting, with a snug complete with a woodburner for cosy evenings, a sitting room, and a bright garden room with lantern roof that enjoys pleasant views. Solid oak floors add a touch of elegance throughout these areas. The ground floor also benefits from a large utility room with extensive cupboard space, as well as a practical cloakroom.

Upstairs, four well-proportioned double bedrooms provide flexible options for family living, complemented by a single bedroom that could serve as a study if required. There is a family shower room and bathroom, which is also accessed from bedroom 2, there is also a shower in bedroom 4. Storage and parking needs are well catered for, with a double garage and ample driveway parking available. The property is further enhanced by a range of useful outbuildings, including a potting shed, a greenhouse with electricity, and a workshop shed, making it perfect for those with hobbies or green-fingered pursuits.

The established garden is thoughtfully landscaped with a variety of mature plants and shrubs, including red cedars, plum trees, and rose beds, and offers several seating areas for relaxation. Towards the rear, a charming woodland garden adds a sense of tranquillity and privacy. This home is a rare opportunity to acquire a substantial and adaptable property in a desirable location, combining generous living spaces with practical features to suit modern family life. Early viewing is highly recommended to appreciate the size, layout, and potential this property has to offer.

Reference: d8738ade-0dfa-4bf7-aa15-4683d2c4b644

Request a viewing for this property

Simply fill out the form below or alternatively call us on 020 7839 0888

* Mandatory fields