4 Bedroom Other
£575,000
Stane Street, North Heath, RH20

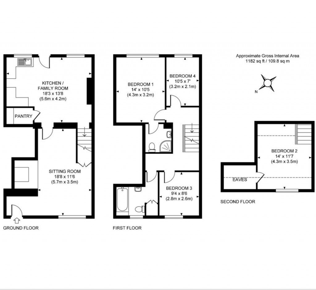
Floorplans For Stane Street, North Heath, RH20 Floorplans For Stane Street, North Heath, RH20

Description


This charming four-bedroom character cottage is set in a desirable semi-rural location and offers a wealth of character throughout its thoughtfully arranged accommodation. Accessed via a private lane leading to the ample parking area for the property.

The welcoming kitchen is a highlight, featuring a wood burner, an electric Aga with gas hob, a practical pantry with space for a washing machine, and a stable door that adds a traditional touch. The sitting room provides a cosy atmosphere with its open fire, making it an inviting space to relax or entertain.

Upstairs, the main bedroom benefits from an en-suite shower room, while two further bedrooms on the first floor are complemented by a well-appointed family bathroom. A spacious double bedroom is located on the second floor, offering flexibility for guests or a home office. The property also includes an outbuilding that has been finished to first fix, presenting an ideal opportunity for use as a utility room with cloakroom facilities (subject to finishing works).

The garden boasts a walled garden and a generous patio area, perfect for entertaining, complete with an outdoor fire for year-round enjoyment. The enclosed garden to the rear, which would originally have been the front of the property when built which we believe to be around 400 years ago, is accessed directly from the sitting room, provides a private retreat. This delightful home is offered with a vendor who is suited and a complete onward chain, ensuring a smooth and efficient transaction process for prospective buyers. With its blend of period features, practical living spaces, and peaceful setting, this cottage represents an exceptional opportunity for those seeking a characterful home in a sought-after semi-rural location.

Reference: c71afe7d-0e6e-4caa-a238-41758832589d

Request a viewing for this property

Simply fill out the form below or alternatively call us on 020 7839 0888

* Mandatory fields