2 Bedroom Terraced
£475,000
Oakroyd Avenue, Dunmow, Essex, CM6

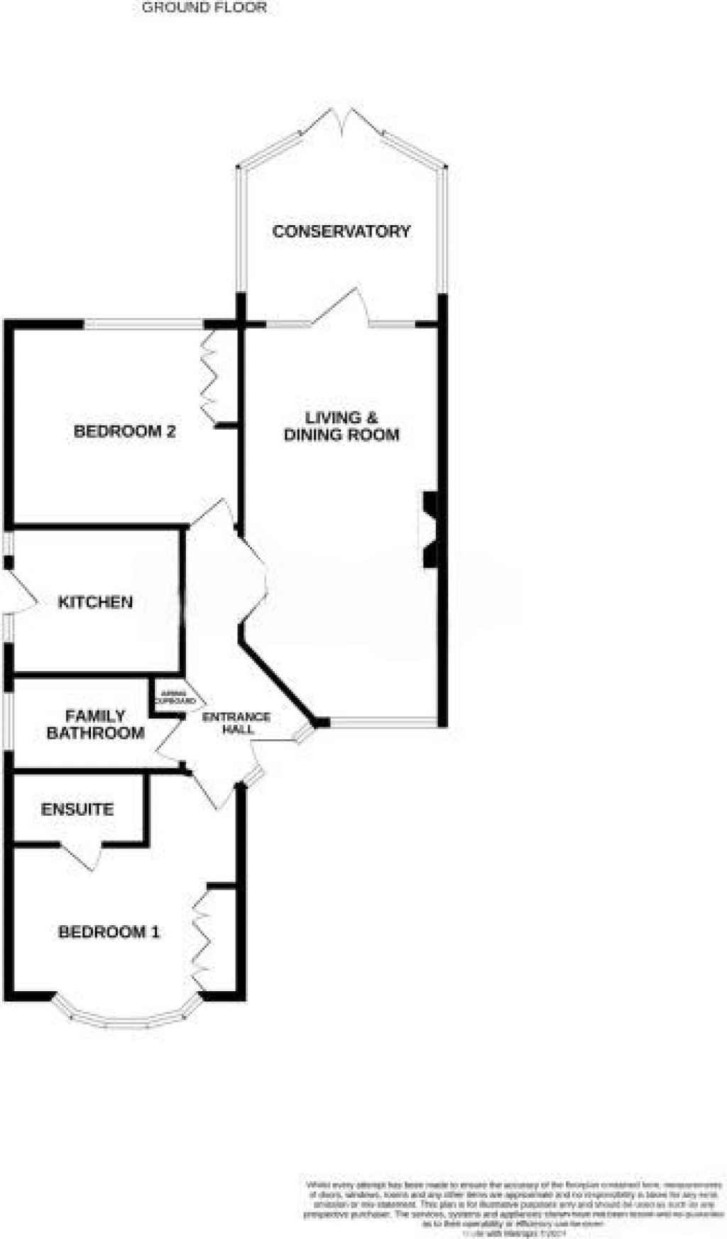
Floorplans For Oakroyd Avenue, Dunmow, Essex, CM6
EPC Graph for Oakroyd Avenue, Dunmow, Essex, CM6

Description


*No onward chain* Located close to Dunmow town centre is this rarely available 1930’s semi-detached bungalow offering scope to extend subject to planning permission. The property offers two double bedrooms with en-suite to principal, kitchen, lounge/dining room, conservatory and family bathroom.

*No onward chain*

Located close to Dunmow town centre is this rarely available 1930’s semi-detached bungalow offering scope to extend subject to planning permission. The property offers two double bedrooms, kitchen, lounge/dining room, conservatory and shower room.

Externally the property boasts a block-paved driveway supplying off street parking for numerous vehicles plus a garage with power and lighting. The rear of the property consists of a large west-facing garden, of approximately 80' in length, with a patio area.

The market town of Great Dunmow is a bustling town full of independent shops, restaurants and public houses/bars. The town centre is full of historic buildings with some stunning seating areas which include the renowned “Doctors Pond”. Some of Great Dunmow’s facilities include: leisure centre, various additional gyms, supermarkets, fantastic primary & secondary schools, parks. The town offers fantastic transport links to Stansted Airport, Chelmsford City and Bishop’s Stortford.

Living / Dining Room 11'5" x 23'3" (3.48m x 7.09m).

Conservatory 10' x 13' (3.05m x 3.96m).

Bedroom 1 12'9" x 11'5" (3.89m x 3.48m).

Bedroom 2 13'5" x 12'7" (4.1m x 3.84m).

Kitchen 10'5" x 8'5" (3.18m x 2.57m).



Reference: bef-NBC241053

Request a viewing for this property

Simply fill out the form below or alternatively call us on 020 7839 0888

* Mandatory fields