3 Bedroom Terraced
£525,000
Scholars Close, Felsted, Dunmow, Essex, CM6

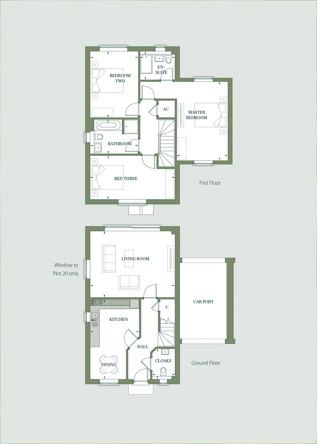
Floorplans For Scholars Close, Felsted, Dunmow, Essex, CM6
EPC Graph for Scholars Close, Felsted, Dunmow, Essex, CM6

Description


*** INCENTIVES AVAILABLE ***   The Montfort is a beautiful three bedroom family house featuring a sleek kitchen/dining area with the latest integrated appliances, spacious living room two bathrooms. finished to a hight specification located in the new development Scholars Green.

*** INCENTIVES AVAILABLE***   This beautiful three bedroom home measuring 1258sq ft features a sleek kitchen/dining area, fitted with premium units and the latest integrated appliances. The spacious living room is flooded with natural light by the large section of sliding glazed doors looking out onto the rear garden. Upstairs, the expansive master bedroom is positioned over the integrated carport to allow ample space for a luxury en-suite, two further double bedrooms and an impressive family bathroom.

Tucked away from the road in a graceful private turning in Watch House Green, ScholarsÂ’ Green connects residents both to the finest qualities of English village life and the tranquillity of the countryside. Framed on one side by Felsted's beautifully-maintained 16th-century buildings and historic independent school, and on the other by an expanse of fields and ancient farmland, this is a collection fully immersed in its heritage.

Owners will enjoy the subtle variations in design and tone across the selection of homes on offer that serve to unify the collection and also give each property its own distinctive character. Each of these premium residences is positioned in a carefully-landscaped plot with ample parking space and attractive new plantings, while the homes themselves display a combination of traditional materials, exceptional craftsmanship and contemporary styling both inside and out.

Inside, you'll find light and spacious living areas carefully planned to make the most of natural light and provide generous, well-proportioned accommodation that is perfect for modern for day-to-day living. Stunning areas for cooking, dining and relaxing are fitted with subtle downlighters, beautiful flooring, premium surfaces and bespoke units housing branded integrated appliances, while glazed doors open out onto landscaped patios and gardens. With innovative planning, to make sure that the homes are energy efficient, user friendly and flexible, ensures they will suit a range of purchasers. Where possible, we have included a dedicated study or versatile spaces to accommodate remote home-working and each house boasts ample power points – with telecom, television points and cabling to selected rooms so you can take advantage of the superfast broadband speeds that are available. With garages and off-road driveways also, these are homes designed so families can relax and enjoy life to the full.

INCENTIVES AVAILABLE, T&C's apply

Entrance Hall

Kitchen Dining Room 16'6" x 10'1" (5.03m x 3.07m).

Living Room 17'5" x 13'8" (5.3m x 4.17m).

Cloakroom 6'4" x 4'7" (1.93m x 1.4m).

Landing

Master Bedroom 16'3" x 10'5" (4.95m x 3.18m).

Ensuite Bathroom 7'1" x 5'10" (2.16m x 1.78m).

Bedroom Two 13'8" x 9'11" (4.17m x 3.02m).

Bedroom Three 17'5" x 9' (5.3m x 2.74m).

Bathroom 9'11" x 6'7" (3.02m x 2m).



Reference: bef-LNH220012

Request a viewing for this property

Simply fill out the form below or alternatively call us on 020 7839 0888

* Mandatory fields