3 Bedroom Terraced
£400,000
High Street, Ingatestone, Essex, CM4

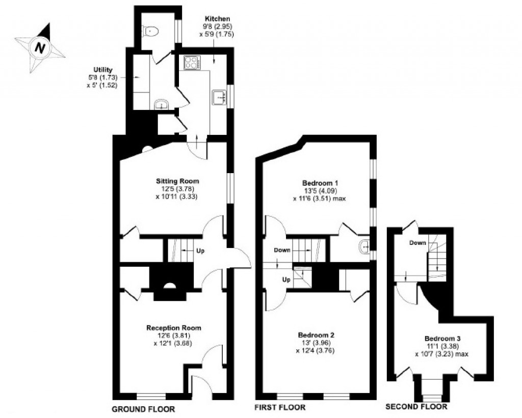
Floorplans For High Street, Ingatestone, Essex, CM4

Description


Guide Price £400,000 to £420,000 - This charming red brick period cottage is located in the heart of Ingatestone High Street, newly fitted kitchen and gas boiler, lawn good size private garden, three levels of accommodation, no onward chain

Guide Price £400,000 to £420,000

A delightful 3 bedroom Grade II Listed village property in the heart of Ingatestone. Of Georgian style c.18th Century with red brick elevations, Georgian windows, set over three floors with a private garden to the rear.

Offered with no onward chain, the interior features, to the ground floor, two separate reception rooms, both with feature fireplaces. The modern fitted kitchen features a range of blue painted Shaker style units with built-in oven, hob and extractor and space for washer-dryer. Beyond is the bathroom with heated towel rail and a separate wc. To the first floor are two bedrooms with a shared wc and the third bedroom is to the first floor. The private garden to the rear is fenced and mainly laid to lawn. This property also has potential for further extensions subject to the relevant consent.

The location is within the heart of Ingatestone village, close to local shops, eateries, tennis and bowling club and local pubs. There are regular bus routes connecting Chelmsford, Shenfield and Brentwood with main line rail services from Ingatestone station which is within easy reach.

Property Information: We understand the kitchen is newly fitted, new boiler and radiators 2024 and property has been re-wired. Brentwood Borough Council tax band D. Historic England Grade II Listing status. Paid parking is available opposite at the Community Centre.


Key Features of Ingatestone

Village Atmosphere with Heritage

Ingatestone has a rich history dating back to the 12th century.

The Ingatestone Hall, a Tudor manor house, adds cultural and architectural charm.

The village retains a traditional high street with independent shops, pubs, and cafes.

Excellent Transport Links

Train: Ingatestone Station offers regular direct services to London Liverpool Street (around 30–35 minutes), making it ideal for commuters.

Road: Easy access to the A12, connecting to Chelmsford, Brentwood, and the M25.

Good Schools

The area is served by well-rated schools including Anglo European School, a popular secondary with an international curriculum.

There are also several reputable primary schools nearby.

Scenic Surroundings

Surrounded by Essex countryside, offering green spaces, country walks, and cycling routes.

A peaceful and low-crime area, appealing to families and retirees.

Community & Lifestyle

Regular farmers’ markets, local clubs, and community events.

Friendly village spirit with an active local community.

Reference: bef-INS220096

Request a viewing for this property

Simply fill out the form below or alternatively call us on 020 7839 0888

* Mandatory fields