5 Bedroom Terraced
£1,850,000
Outings Lane, Doddinghurst, Essex, CM15

Floorplans For Outings Lane, Doddinghurst, Essex, CM15

Description


*NO ONWARD CHAIN* A 4 bedroom former hunting lodge dating back to the 17th Century, beautifully styled throughout with three reception rooms, principal bedroom suite and work from home space. Set in a landscaped plot approx. 1.6 acres with outbuildings, garaging, floodlit tennis court and swimming pool. Located close to Doddinghurst village centre and well placed for nearby Shenfield, Brentwood and main road links. EPC exempt.

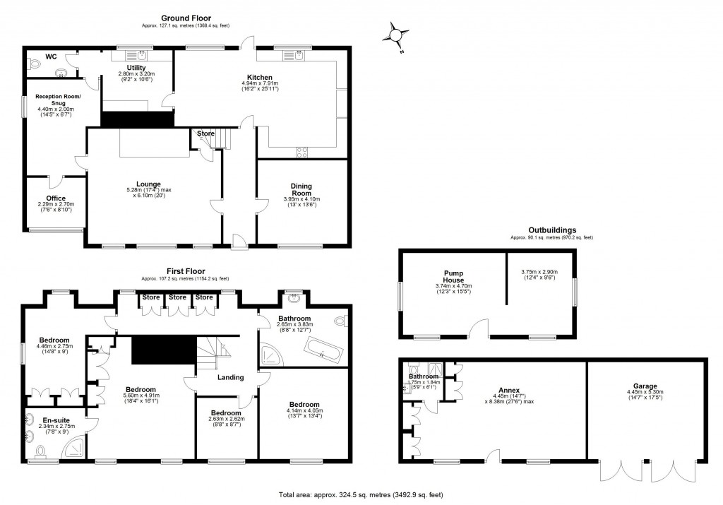
This exquisite Grade II listed former Hunting Lodge, dating back to the 17th Century, is a rare and idyllic find. Nestled within approximately 1.6 acres of beautifully landscaped grounds, the property exudes historic charm and elegance, with features including a well-maintained tennis court and a secluded swimming pool area. The property is approached via an impressive in-and-out gravelled driveway, secured by two gated entrances, offering extensive parking and access to the detached coach house with garaging and a charming cart lodge. Upon entering, you're welcomed into a beautiful hallway that sets the tone for this historic home, showcasing a wealth of period features such as exposed beams and leaded light windows. The heart of the home is the stunning central reception room, boasting an impressive Inglenook fireplace with a bressumer beam and a wood-burning stove, ideal for cozy winter evenings. Opposite is a refined formal dining room, perfect for entertaining. The bespoke kitchen/breakfast room is both stylish and functional, featuring hand-crafted white oak units and a charming original black stove. Modern conveniences include a Rangemaster cooker, built-in Miele coffee machine and microwave, and a traditional double butler sink. The kitchen opens onto the rear patio and garden, offering a seamless transition for al fresco dining. Adjacent is a spacious utility room and ground floor cloakroom, with further access leading into a delightful snug or additional reception room. This versatile space flows through to a well-appointed home office, offering the perfect blend of comfort and practicality.
Upstairs, the principal bedroom features a stunning exposed brick chimney, built-in wardrobes and an en-suite shower room with his and hers sinks. There are three further bedrooms on this level and a luxurious family bathroom, which features a freestanding roll top bath and separate shower. The first-floor landing also offers ample storage space.

The grounds are equally enchanting, with meticulously landscaped gardens framed by mature trees, shrubs and views of the surrounding countryside. Behind the house, a sun-soaked terrace provides access to the stunning swimming pool, bordered by paved surrounds and manicured hedging. Beyond, the lawned gardens offer space for leisure and play, with pathways leading to a floodlit tennis court, football pitch and a delightful children's play area that spans approx 100 sq meters, featuring safety padding topped with artificial grass. The grounds also feature a picturesque natural pond, set beneath a graceful willow tree. This large, self-filling pond is a haven for wildlife and each year is home to ducklings and other charming local fauna. The play equipment and trampoline can remain with the property if desired. To the front of the property, the detached coach house and cart lodge offer versatile spaces, ideal for storage, a home gym or an additional office. The coach house also presents the opportunity to be used as a self-contained living accommodation, offering flexibility for extended family or guests and includes fitted cupboards, a shower room and a WC. A separate pump room and charming summerhouse complete this impressive estate. Situated in a highly sought-after semi-rural location, the property offers the tranquillity of countryside living, while remaining conveniently close to Doddinghurst Village, Blackmore, Ingatestone, Shenfield and Brentwood. Shenfield mainline station, with its Elizabeth Line services, is within easy reach, along with Brentwood town centre and major road links. This exceptional property also benefits from a Sonos sound system, gas central heating, underfloor heating and mains drainage. EPC exempt. Brentwood Borough Council Tax Band H. PLEASE NOTE: We understand planning consent for a double-story side extension was previously granted by Brentwood Borough Council (now lapsed). Our reference: CAV180098

Shenfield main line station 5 miles (London Liverpool Street approx. 20 minutes – Elizabeth Line services) | Brentwood Town Centre and main line railway station approx. 4.8 miles
Doddinghurst Infant & Junior School 0.7 mile (bus service to Shenfield School & St. Martin's senior school) | Brentwood Private School 4 miles
Main road links via A12/M25 or A414/M11/Stansted Airport

Reference: bef-CAV180098

Request a viewing for this property

Simply fill out the form below or alternatively call us on 020 7839 0888

* Mandatory fields