2 Bedroom Terraced
£425,000
Cromwell Road, Warley, CM14

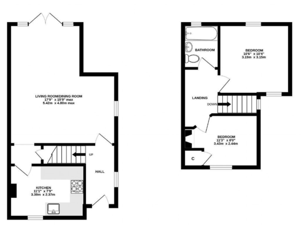
Floorplans For Cromwell Road, Warley, CM14
EPC Graph for Cromwell Road, Warley, CM14

Description


Attractive weatherboarded cottage with good access to Brentwood Station. This charming two bedroom semi-detached home offers a spacious living room, delightful garden. No onward chain - seize the chance to own this property today!

Offering good access to Brentwood Station, this attractive weatherboarded cottage features a spacious living room, a modern kitchen, and a bright dining area and being sold with no onward chain, this charming two-bedroom property is ideal for those seeking a convenient and hassle-free move. The well-maintained interior exudes character and warmth, making it a perfect retreat after a long day. The property also benefits from a lovely garden, providing a peaceful outdoor space for relaxation or entertaining. With its convenient location and comfortable living spaces, this cottage offers a lifestyle of ease and comfort. Don't miss out on the opportunity to make this delightful property your new home. Contact us today to schedule a viewing. (Ref: BES250026)

Reference: bef-BES250026

Request a viewing for this property

Simply fill out the form below or alternatively call us on 020 7839 0888

* Mandatory fields