2 Bedroom House
£400,000
West Street, Selsey, PO20

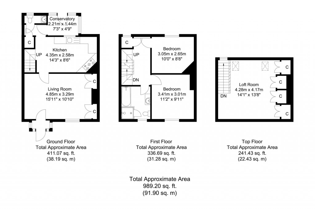
Floorplans For West Street, Selsey, PO20

Description


Situated in a truly enchanting location, this Grade II listed character former coastguard cottage offers a rare opportunity to own a piece of history. With the sea views from the front-facing bedroom & bathroom along with views of the Southdowns to the rear, the property enjoys a unique position that is sure to captivate any discerning buyer.

Upon entering the property, you are greeted by a blend of classic charm and contemporary comforts. The interior showcases two delightful bedrooms, complemented by a loft room currently repurposed as a third bedroom. The bathroom features a bath and separate shower, while a convenient ground floor cloakroom adds a practical touch to the layout.

The heart of the home lies within the kitchen and conservatory spaces, where natural light floods in, creating a warm and inviting atmosphere. The present owner has undertaken significant updates to the property since 2021, ensuring that modern fixtures seamlessly merge with the historical character to provide a truly unique living experience.

Outside, a generous 100ft garden offers a tranquil & private escape, providing ample space for relaxation and outdoor activities. Parking is made easy with the added convenience space for 2 cars (size dependant) and a barn-style carport, allowing for storage and protection from the elements.

Offered with NO onward chain, this property presents an ideal opportunity for those seeking a holiday home or potential Airbnb investment. The combination of character charm, breathtaking views, and practical amenities make this property a rare find that is not to be missed.
Henry Adams

Henry Adams

122 High Street
Selsey
West Sussex
PO20 0QE

+44 (0)1243 606789

Reference: bcb21902-88b6-4af7-8af8-ebe7c7a9a44c

Request a viewing for this property

Simply fill out the form below or alternatively call us on 020 7839 0888

* Mandatory fields