1 Bedroom House
£240,000
Church Corner House, Church Road, RH16

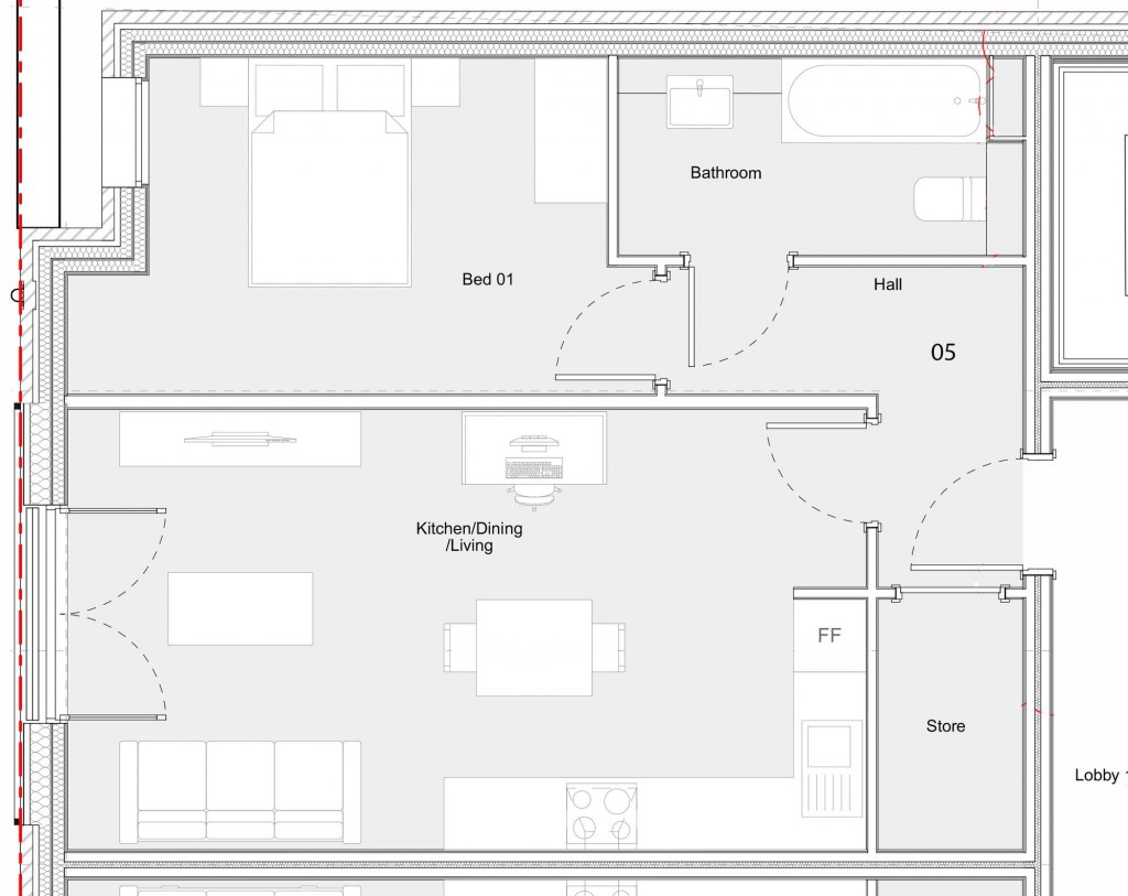
Floorplans For Church Corner House, Church Road, RH16

Description


Viewings of our beautiful apartments now available by appointment only, please contact us today to book your appointment!

Situated in a prime Haywards Heath location in the centre of the bustling town is Church Corner House - a selection of just 19 modern, high-quality new apartments that offer the ideal first home or buy-to-let investment. Located on the third floor with lift access, the apartment has been designed with a high-spec in mind and features a stunning finish throughout.

The bright open plan living/dining/kitchen area provides plenty of space. The sleek, designer kitchen comprises of light grey, handle-less cabinets and quartz worktops, and comes fully equipped with integrated appliances including fridge/freezer, oven and microwave, and an induction hob.

There is a spacious double bedroom finished with high-quality wood affect flooring, which runs through the entire apartment. The luxury bathroom features neutral and modern ceramic floor and wall tiles, a bath with shower over, and extra touches which include a heated towel rail and LED anti-mist mirror. Sought-after storage space can also be found off of the hallway.

The central Haywards Heath location means that all of the towns many amenities can be found right on your doorstep. Haywards Heath station is accessed within a half mile walk and offers regular and direct connections to London Bridge and London Victoria in less than an hour, as well as Brighton and Gatwick Airport. The Princess Royal hospital is also just 1 mile/a 20 minute walk from the development.

There is a 10 year warranty, meaning peace of mind comes as standard at Church Corner House. This is the perfect low-maintenance home, and with an approximate potential rental yield of 4.7% (based on market conditions at the time of let), this apartment also offers the ideal investment opportunity. For more information on the first phase please contact our New Homes Team.

*In some cases images may be of other units to provide an indicative example of finish for the properties and may have been digitally dressed to provide an indicative example of how the rooms may look. Exact layouts will vary by plot, contact us for more information.

*cost of 5 years parking permit provided on completion for a nearby council owned car park a short walk from the property. Based on current annual rate.

Lease - 999 years / Ground Rent – Peppercorn / Estimated Service Charge - 3.40 per sqft

Limitation of Agents Liability – the information included within this brochure and all marketing material for the development is provided for guidance only and is intended to give a fair overall summary of the final specification for the development/property as provided to us by the developer. They do not form part of any contract or offer and should not be relied upon as a statement or representation of fact. As new homes are often not complete at the time of offer, and even if complete may be subject to final snags, a full specification of the property should be requested via your solicitor during the conveyancing in addition to the guide that our marketing material provides. It is recommended that all buyers conduct a snagging survey prior to legal completion so that any snags being rectified are a condition of sale. Measurements, areas and distances provided are approximate only. No undertaking is given from the Agent as to the final specification, compliance with building regulations, planning consents or warranties as such matters are handled during the legal conveyance of a new build and are therefore the responsibility of your appointed solicitor to confirm.

Reference: b7c7533d-dea2-4ee8-b09b-f27622c4305f

Request a viewing for this property

Simply fill out the form below or alternatively call us on 020 7839 0888

* Mandatory fields