2 Bedroom Flat
£350,000
Church Road, Haywards Heath, RH16

Floorplans For Church Road, Haywards Heath, RH16

Description


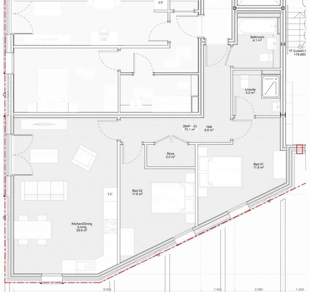
This incredible two bedroom, two bathroom apartment is located on the first floor of the fantastic Church Corner House development. Flat 1 is the largest of all the apartments spanning an impressive 808sq ft.

The layout has been carefully considered and boasts an impressive living space, the heart of the apartment is the open plan living/kitchen/dining room offering a versatile area large enough to accommodate a designated work from home space. This room is also flooded with natural light due to the Juliette balcony and dual aspect windows. The sleek, designer kitchen comprises of light grey, handle-less cabinets and quartz worktops, and comes fully equipped with integrated appliances including fridge/freezer, oven, hob and microwave.

High-quality wood effect flooring features throughout the apartment, including into each of the two spacious double bedrooms, with the principle bedroom also benefitting from an en-suite. The luxury bathroom features ceramic floor and wall tiles, a bath with shower over, heated towel rail and LED anti-mist mirror. Sought-after storage space can also be found off of the hallway.

Every element has been considered to provide a quality, executive new home that is ideally suited for first time buyers working in the local area or commuting, downsizers seeking a low-maintenance new home, or investors seeking a town-centre buy-to-let opportunity with promising yields. A 10 year New Home warranty comes as standard for complete peace of mind, and further benefits include a 999 year lease and peppercorn ground rent.

Church Corner House is situated within central Haywards Heath, meaning the town's vast range of amenities are within a short stroll. Haywards Heath mainline station is accessed within a half mile walk and offers regular and direct connections to London Bridge and London Victoria in less than an hour, as well as Brighton and Gatwick Airport. The Princess Royal hospital is also just 1 mile/a 20 minute walk from the development.

There is a selection of restaurants, pubs, shops, supermarkets, gyms, leisure facilities and parks within walking distance, making this the ultimate location for those seeking a town-centre residence.

Viewings are available now by appointment only, please contact us to book your appointment today!

Tenure - leasehold/ Lease length - 999 years/ Ground rent - peppercorn/ Service charge estimate - £3.40 per square foot, per annum.

**Images may be digitally dressed to provide an indicative example of how the rooms may look when furnished.

Limitation of Agents Liability – the information included within this brochure and all marketing material for the development is provided for guidance only and is intended to give a fair overall summary of the final specification for the development/property as provided to us by the developer. They do not form part of any contract or offer and should not be relied upon as a statement or representation of fact. As new homes are often not complete at the time of offer, and even if complete may be subject to final snags, a full specification of the property should be requested via your solicitor during the conveyancing in addition to the guide that our marketing material provides. It is recommended that all buyers conduct a snagging survey prior to legal completion so that any snags being rectified are a condition of sale. Measurements, areas and distances provided are approximate only. No undertaking is given from the Agent as to the final specification, compliance with building regulations, planning consents or warranties as such matters are handled during the legal conveyance of a new build and are therefore the responsibility of your appointed solicitor to confirm.

Reference: b2a329e8-68f5-41a9-9742-bc9e3d363bf6

Request a viewing for this property

Simply fill out the form below or alternatively call us on 020 7839 0888

* Mandatory fields