4 Bedroom House
£950,000
The Hollow, Washington, RH20

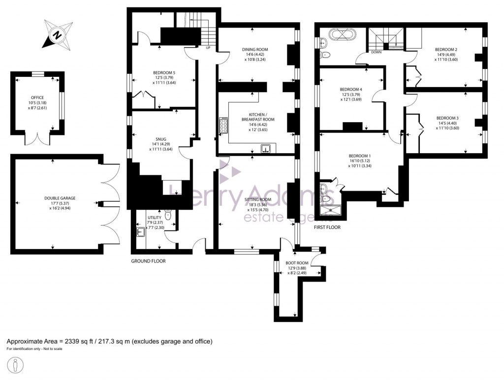
Floorplans For The Hollow, Washington, RH20

Description


A charming and beautifully presented Grade II Listed attached home, set within exquisitely maintained gardens and grounds on the edge of the highly sought-after village of Washington. This delightful property combines period character with generously proportioned, versatile accommodation, ideal for modern family living. 

An attractive walled courtyard garden leads to the bright entrance hall, setting the tone for the warm and welcoming interior beyond. At the heart of the home lies a delightful country-style kitchen with fitted units, seamlessly flowing into a dining/breakfast room that enjoys lovely views across the gardens—perfect for everyday family life and entertaining alike. The impressive vaulted principal living room offers a superb entertaining space, enhanced by a log-burning stove and dual-aspect outlook that bathes the room in natural light. A cosy snug or second reception room, complete with an inglenook fireplace, provides a more intimate retreat. Further ground floor accommodation includes a separate utility room, cloakroom, and an additional reception room which could be utilised as a home office, music room, or fifth bedroom, offering excellent flexibility. 

On the first floor are four well-proportioned bedrooms, some benefiting from fitted wardrobes. The principal bedroom is complemented by a stylish en-suite shower room, while the remaining bedrooms are served by a family bathroom featuring a distinctive Sussex-style oval stained-glass window. 

The property is approached via a shared gravel driveway providing ample parking for several vehicles. To the front of the house, the charming walled courtyard garden offers a sheltered suntrap and BBQ area, ideal for al fresco dining and outdoor entertaining. There is a detached double-bay oak-framed garage with power and lighting, alongside a beautiful detached vaulted brick-built outbuilding—perfect for use as a dedicated home office or hobbies room. The gardens and grounds are a particular highlight—beautifully landscaped and mainly laid to lawn, interspersed with mature trees including a striking tulip tree. Additional features include ponds with a dedicated seating area and a productive vegetable garden. The grounds extend into further land acquired by the current owners, creating a wonderful sense of space, privacy, and connection to nature. 

To the front of the house, the charming walled courtyard garden offers a sheltered suntrap and BBQ area, ideal for al fresco dining and outdoor entertaining.

Reference: aa984cbb-8305-4fce-8eb3-648ca46e1d74

Request a viewing for this property

Simply fill out the form below or alternatively call us on 020 7839 0888

* Mandatory fields