3 Bedroom Semi Detached House
£245,000
Howwood, Johnstone

EPC Graph for Howwood, Johnstone}

Description


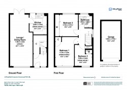
10 Mayfield Crescent is an impressive three bedroom semi-detached home located in a sought after position within the popular Renfrewshire village of Howwood. It is well placed for a host of local amenities, schools, shops and has excellent transport links to and from Glasgow and the surrounding area. The property is approached via an extensive driveway with carport, providing ample space for two vehicles.  Inside, the property is well presented and neutrally decorated, providing bright and airy accommodation arranged over two levels.  The broad hallway has a large understairs storage cupboard and leads to the impressive open plan lounge/dining room. Features include a glass internal door, hardwood flooring and French doors to the rear providing direct access to the landscaped gardens. The kitchen comes with a range of wall and base storage units, integrated appliances, stainless steel sink and a door into the rear garden. On the upper level there are three bedrooms and a family bathroom which has a corner jacuzzi bath, shower, wall and floor tiling, heated towel rail, wc and wash hand basin. The gardens are a particular feature of the property and have been completely landscaped for ease of maintenance and to enjoy the outdoors. There is a large monoblock terrace and decking with a gazebo, raised flower beds and clothes drying area. A gate to the side leads to the driveway and garage. Summary of Accommodation: Bright, neutrally decorated. Modern kitchen with integrated appliances. Three spacious bedrooms with storage. Low-maintenance, rear garden. Large monobloc driveway for multiple vehicles including a carport. Howwood is a desirable village in Renfrewshire, ideal for commuters with easy access to Glasgow and Ayrshire via the A737 or Howwood Train Station. The village offers a strong sense of community and a range of local amenities, including a primary school, café, convenience store, The Howwood Inn, and The Boarding House restaurant. For leisure, residents enjoy the Bowfield Hotel & Spa, Howwood Bowling Club, and Greenacres Curling Club. Set against a backdrop of scenic countryside, Howwood combines rural charm with modern convenience. Lochwinnoch is around 4 miles from Howwood and boasts a wealth of stunning countryside, flora, fauna and a host of eating and drinking places to make the perfect family day out. Located on the edge of Clyde Muirshiel Regional Park, Scotland’s largest regional park, you have access to 108 square miles of countryside to explore on foot, bike, or simply relax and enjoy. Castle Semple Centre is in the village itself and offers woodland walks, cycle hire and is the base for many local water sports clubs. Gas central heating and replacement double glazing and doors. EPC : BAND D COUNCIL TAX : BAND D TENURE : FREEHOLD

Reference: TCW260004

Request a viewing for this property

Simply fill out the form below or alternatively call us on 020 7839 0888

* Mandatory fields