3 Bedroom Detached House
£499,000
Tighnabruaich, Argyll and Bute

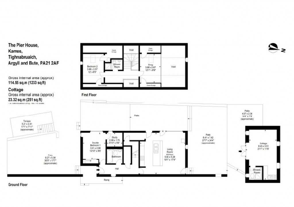
Floorplans For Tighnabruaich, Argyll and Bute
EPC Graph for Tighnabruaich, Argyll and Bute}

Description


The Pier House, Kames is a delightful contemporary detached waterside home occupying a spectacular location with its own pier, beachfront and separate detached cottage. This stunning architect designed home sits in the most breathtaking of locations on Scotland’s west coast, close to the village of Tighnabruiach, a hugely popular sailing destination within the Kyles of Bute. Situated on the site of the Kames Pier, once a busy stop off point for passengers on the numerous pleasure steamers that were so popular in the 19th and first half of the 20th century, the house has a pleasing contemporary exterior which fits well into its surroundings. It has been architect designed by Studio KAP to showcase the spectacular views and to make clever use of the space within. The accommodation begins with a light and airy hallway which leads into the main living space: a fabulous sitting room/dining kitchen which is double height at one end and features a modern log burner with stainless steel flue. An expansive full height picture window and glazed door frame the stunning outlooks and open onto the extensive decked terrace which wraps around two sides of the house. The sleek and stylish kitchen area has its own door out to the terrace and benefits from a gas hob, electric oven, concealed integrated fridge/freezer and washing machine. Double bedroom 1 is on the ground floor and enjoys beautiful views, has built-in storage and a study or dressing room off. Completing this level is an attractive bathroom. Stairs lead up to the first floor where there is a gallery level above the sitting room with Velux windows which is currently used as a snug/living room but could also work as another bedroom. Double bedroom 2 has a shower room adjacent. Outside, the decked terrace is a fabulous suntrap and the ideal place to sit out and take in the mesmerising views, with plenty of space for entertaining. The remains of the original pier now forms a private grassed pier which makes another wonderful alfresco spot and leads down to the water. Pier House also owns a stretch of the beach in front and adjacent to the cottage to the south of the property. Plans are included to extend the property with Argyll and Bute Planning department. Further details are available on request. Adjacent to the main house and included in the sale is Pier House Cottage, a cosy detached traditional cottage which has operated successfully since 2008 providing visitors to the area with an unforgettable holiday experience. The cottage is fully accredited through the Scottish Government as a short term holiday let and has a healthy advanced booking of new and returning guests. Summary of Accommodation •Versatile accommodation offering space for three to four bedrooms. • Spectacular waterside location on the site of the Kames Pier • Includes both historical pier and private beach frontage • Award winning Scottish Architect "StudioKAP" designed home with expansive views over the Kyles of Bute • Expansive wraparound decked and lawned terrace • Detached bothy cottage operating as successful holiday let • Approx. gross internal floor area 1233 sq ft (main house) and 215 sq ft (cottage) The Pier House occupies a remarkable location which directly fronts the Kyles of Bute. It is very conveniently situated at the heart of the village with its good local facilities. Dunoon and Rothesay provide wider shopping facilities. Local clubs cater for art, music, horticultural and craft interests amongst others. Tighnabruaich has its own primary school and secondary schooling (day and boarding) is available at Dunoon (24 miles).  The area offers much in the way of outdoor pursuits and is well known for its natural beauty and dramatic scenery. Ever popular with the sailing fraternity, the area also has much to attract wildlife enthusiasts – cormorants, herons, guillemots, seals, dolphins, porpoises and basking sharks have all been observed. Sea, river and loch fishing are available in the area. In addition, there are a number of commercially run shoots on nearby estates which also offer stalking by arrangement. Council Tax Band: D EPC Rating: D Tenure: Freehold

Reference: TCW250079

Request a viewing for this property

Simply fill out the form below or alternatively call us on 020 7839 0888

* Mandatory fields