5 Bedroom Detached House
£425,000
Bridge Of Weir, Renfrewshire

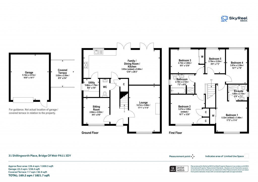
Floorplans For Bridge Of Weir, Renfrewshire
EPC Graph for Bridge Of Weir, Renfrewshire}

Description


31 Shillingworth Place is an impressive detached home located in the heart of the popular Renfrewshire village of Bridge of Weir. Enjoying an elevated position, the property boasts far reaching views over the local countryside and beyond. This stunning home occupies a highly sought after location in a much admired modern development within Gryffe catchment. Built circa 2017, the property is presented to the market in excellent decorative order throughout providing bright and airy accommodation over two levels. Finished to an impressive specification, it combines contemporary design with a spacious and versatile layout. The accommodation is entered via the reception hallway which leads to the sitting room and a well-proportioned lounge. There is a WC/cloak and understair storage area located off the inner hallway. This leads into an extensive open plan kitchen with family and dining area which comes with a comprehensive range of wall and base storage units and integrated appliances. Filled with natural light and with French doors opening up into the landscaped gardens to the rear, this is the perfect place to entertain, particularly in the summer months. The utility room is located off the kitchen and provides additional space for storage and white goods. On the upper level there are five bedrooms. The principle bedroom is front facing and enjoys great open views and comes with an ensuite bathroom. There are another 4 bedrooms and a beautifully appointed family bathroom. There is a monobloc driveway to the side of the property providing ample off street parking for several vehicles and electric car charger This leads to the garage which has power and lighting. The rear gardens have been professionally landscaped and include a large flagstone terrace, astroturf and a cleverly designed glass pergola attached to the garage, ideal for BBQ and outdoor entertainment. High internal specification Oak veneer doors Hardwood flooring Beautifully decorated and presented Electric car charger Landscaped gardens Gryffe catchment The area boasts excellent educational options, including Bridge of Weir Primary and Gryffe High School. Nearby Glasgow provides a number of excellent private schools, some with transport by school bus. Surrounded by scenic countryside, Bridge of Weir offers easy access to walking, cycling, and outdoor activities, with the Clyde Muirshiel Regional Park and Gryffe Valley nearby for weekend adventures. Golf enthusiasts will appreciate the proximity of Ranfurly Castle and Old Course Ranfurly golf clubs — both offering first-class facilities and stunning views. The village also features a thoughtful selection of independent cafés, shops, restaurants, and essential services, creating a strong sense of local life and community. With a reputation for safety, good schooling, and green open space, Bridge of Weir is ideal for families, retirees, and those seeking a refined, relaxed lifestyle. The area retains its historic charm with a range of period homes and buildings, giving the village a distinctive character that continues to attract discerning buyers. EPC : BAND B COUNCIL TAX : BAND G TENURE : FREEHOLD

Reference: TCW250078

Request a viewing for this property

Simply fill out the form below or alternatively call us on 020 7839 0888

* Mandatory fields