5 Bedroom Detached House
£525,000
Houston, Renfrewshire

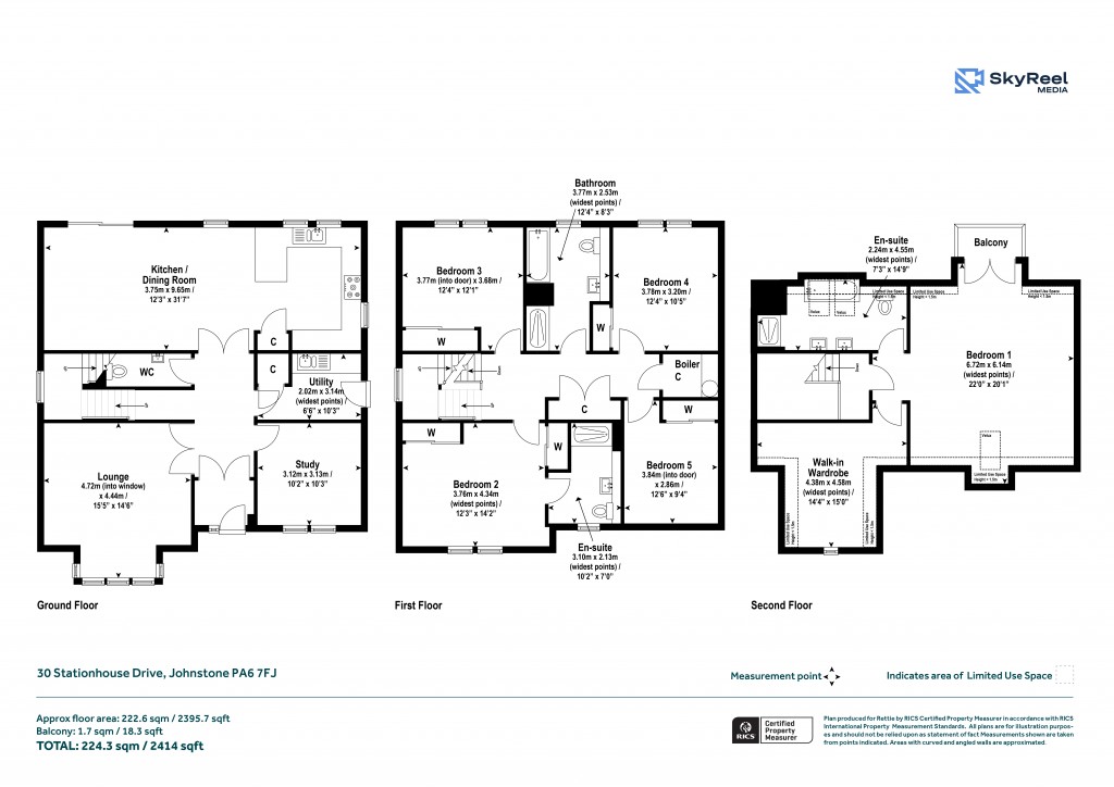
Floorplans For Houston, Renfrewshire
EPC Graph for Houston, Renfrewshire}

Description


No. 30 Stationhouse Drive is a highly impressive three storey detached home, situated on the fringes of Brookfield. Built in 2023, this beautifully appointed home forms part of an exclusive private development of just twenty four homes and is perfectly located for commuters and a host of local amenities. The flexibility, proportions and location of this fabulous property will suit a variety of buyers. The accommodation comprises: Ground floor: Hall, study, living room, open plan kitchen and living space, separate WC, utility. First floor: Landing, 4 bedrooms and 2 bathrooms. Second floor: Landing, Principal Bedroom with balcony, bathroom, nursery / dressing room. Internal Finishes and Features: Walls, ceiling, staircase and balustrade finished in white satin; bespoke internal doors, facings and skirtings; 2.7m ceiling height to ground floor level Kitchens: Quality appliances - integrated gas hob, electric oven, microwave, fridge/freezer and dishwasher Stainless steel hood over hob Contemporary kitchen units with worktops Glass splashback to gas hob Stainless steel sink and mixer tap Under pelmet lighting Utility Room: Free standing washer/dryer Bathrooms and En-suites: Porcelanosa white sanitary ware, splashback and full height tiling in shower cubicle Mains pressure thermostatic shower Shaver sockets in bathrooms and en-suites Towel warmer in bathrooms and en-suites Spotlights in all bathrooms and shower rooms Electrical and Heating Pendant Lighting throughout with spotlights as standard. Smoke and heat alarms High Performance, Energy Efficient, Low Emission gas combi boiler and white radiators including thermostatic valves Ample sockets and light switches including USB sockets Brushed chrome sockets and switches to ground floor level including USB sockets Windows and Doors UPVC double glazed windows and patio doors; external anthracite grey, internal white Monoblock driveway providing ample off street parking Paving slabs to front door and rear including patio Front and rear garden laid to lawn Turf to front gardens Lights to external soffits 1.8m high perimeter fence to rear Solar panels to roof External front and rear door lights Great location Excellent transport links Convenient for commuting to Glasgow, Airport and Ayrshire High internal specification Porcelanosa sanitary ware and tiling The property is located off the B789 Barrochan Road to the east of the hamlet of Brookfield which leads to the neighbouring village of Houston. With a host of leisure pursuits close at hand – including golf courses, woodland walks, bars, and restaurants – residents can enjoy both convenience and quality of life, whether travelling on foot, by car, or via public transport. This is a highly sought-after location, popular with commuters thanks to its excellent transport links. The nearby A737 provides swift access to the M8 motorway, Glasgow International Airport, and Glasgow city centre. For rail commuters, Johnstone Station offers park-and-ride facilities with regular services to both the city and the Clyde coast. EPC : BAND B COUNCIL TAX : BAND G TENURE : FREEHOLD

Reference: TCW250037

Request a viewing for this property

Simply fill out the form below or alternatively call us on 020 7839 0888

* Mandatory fields