5 Bedroom Detached House
£695,000
Lanark

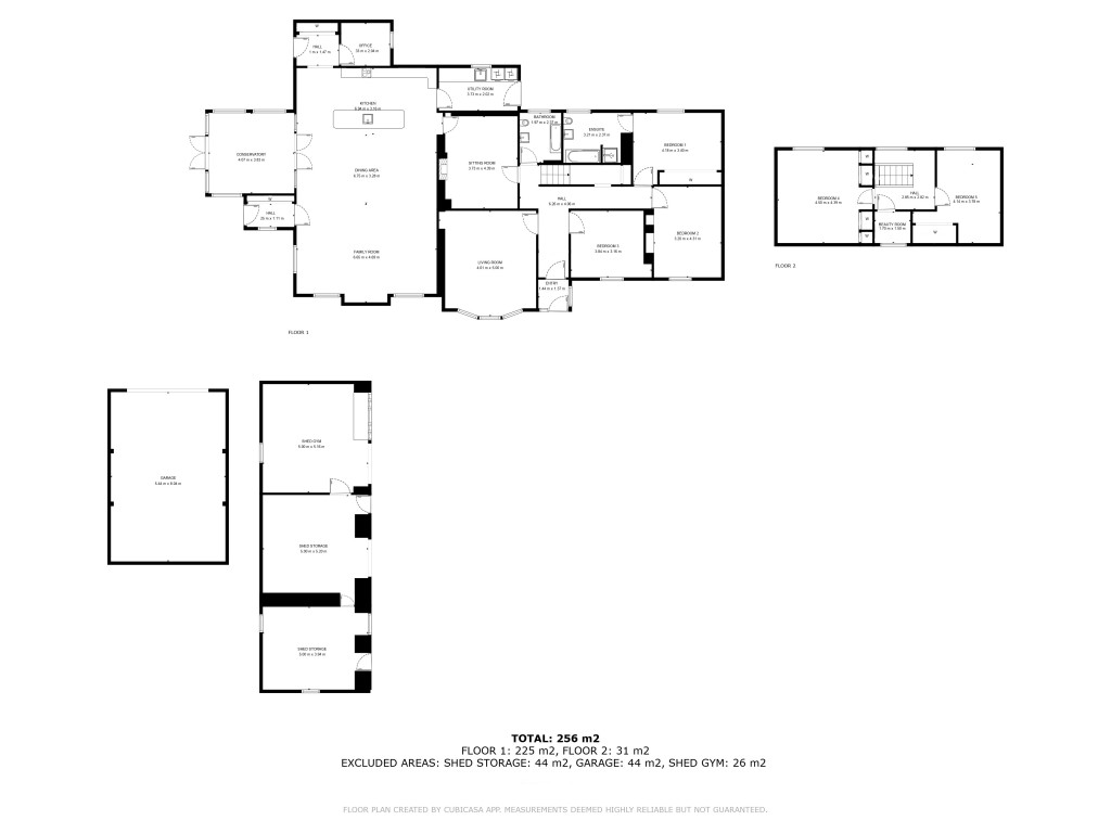
Floorplans For Lanark
EPC Graph for Lanark}

Description


Woodend, Lanark An exceptional country home in a private, elevated position, set in approximately 6 acres. Woodend is a highly impressive home that has been beautifully upgraded and extended, offering a seamless blend of period charm and contemporary living. Set in a peaceful rural location on the periphery of Lanark, this stunning property enjoys complete privacy while remaining within easy reach of local amenities. Accommodation: From the private, tree-lined driveway, the property opens to landscaped grounds. Inside, the attention to detail is immediately evident exposed roof beams, quality flooring, and bespoke finishes create a warm yet sophisticated feel. The heart of the home is the stunning open-plan kitchen, dining, and family room, flooded with natural light and designed for both everyday living and entertaining. The bay-windowed living room and additional sitting room offer cosy retreats, and there is a dedicated study/home office for home working, utility room and garden room. Three well-proportioned bedrooms include a principal suite with en suite shower room, complemented by a contemporary family bathroom and a further two bedrooms and beauty room/dressing room upstairs. Woodend will suit a variety of purchasers, in particular those looking for a lifestyle property with an abundance of possibilities including equestrian pursuits and potential further development subject to planning. • Approx. 234 sq m of flexible living space over two levels. • Circa 6 acres of landscaped gardens and grounds. • Five bedrooms, including en suite principal bedroom. • Elegant bay-windowed living room and additional sitting room. • Spectacular open-plan kitchen, dining, and family area. • Study/home office, garden room, utility room. • Detached former cottage with development potential. • Garage, terraces, decking areas, and ample parking. • Scope for equestrian pursuits and further development (STP) Woodend enjoys a tranquil rural setting, tucked away in a private position close to the historic market town of Lanark. This enviable location combines the best of both worlds - secluded countryside living with easy access to the vibrant cities of Glasgow and Edinburgh, both within a comfortable commuting distance. Lanark, the most renowned town in the picturesque Clyde Valley, offers excellent transport links via the rail network, along with a broad range of shops, supermarkets, banks, and everyday amenities. The town boasts an array of restaurants and cafés, alongside first-class sporting and leisure facilities. Golf enthusiasts will appreciate Lanark Golf Club, home to a championship-standard 18-hole course. Education provision in the area is strong, with a choice of highly regarded schools serving the community. EPC : BAND E COUNCIL TAX : BAND F TENURE : FREEHOLD

Reference: TCW250023

Request a viewing for this property

Simply fill out the form below or alternatively call us on 020 7839 0888

* Mandatory fields