2 Bedroom Detached House
£550,000
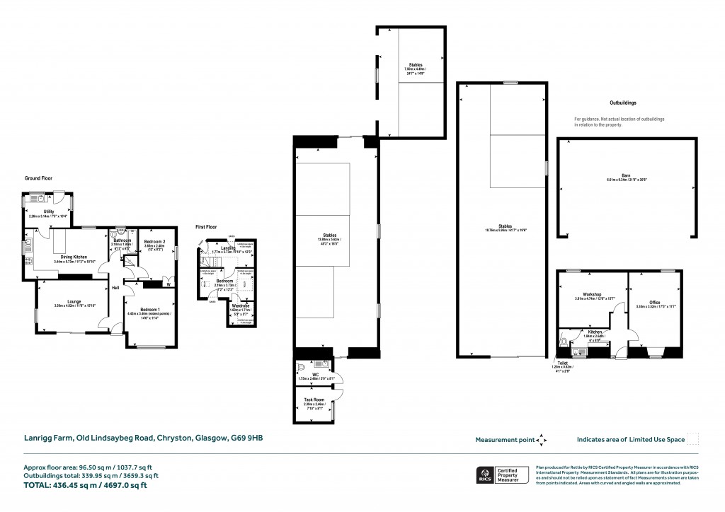
Chryston, Glasgow, North Lanarkshire

Floorplans For Chryston, Glasgow, North Lanarkshire
EPC Graph for Chryston, Glasgow, North Lanarkshire}

Description


Lanrigg Farm is a rarely available, versatile smallholding offering a superb range of potential options including further development, hobby farm or equestrian opportunities. Located on the edge of Chryston, 7 miles east of Glasgow the property is in circa 3.5 acres and includes and extensive range of outbuildings. The existing farmhouse requires upgrading and comprises entrance hallway, lounge, dining kitchen, utility room, bathroom and 2 bedrooms with attic room. There is an extensive range of outbuildings which includes office, workshop and kitchen; large barn, stables, wc and tack room. There is also a sand and rubber riding arena. Positioned at the bottom of Old Lindsaybeg Road, the property is well placed for local amenities yet enjoys a peaceful setting. Cottage: Reception hallway, lounge, dining kitchen, utility room, bathroom, 3 bedrooms, walled terraced area. Outbuildings/Outside: 3.5 acres, stable block, tack room, wc, barn, office, workshop, kitchen; courtyard, riding arena. Chryston is located 7 miles northeast of Glasgow and lies adjacent to Muirhead and Moodiesburn. It is ideally positioned for those looking for a mix of village life and easy access to a vast transport network on the doorstep. There are an excellent range of local amenities and schooling nearby as well plenty of restaurants, cafes, and gyms all nearby. EPC : BAND E COUNCIL TAX : BAND H TENURE : FREEHOLD

Reference: TCW250007

Request a viewing for this property

Simply fill out the form below or alternatively call us on 020 7839 0888

* Mandatory fields