5 Bedroom Detached House
£550,000
Houston

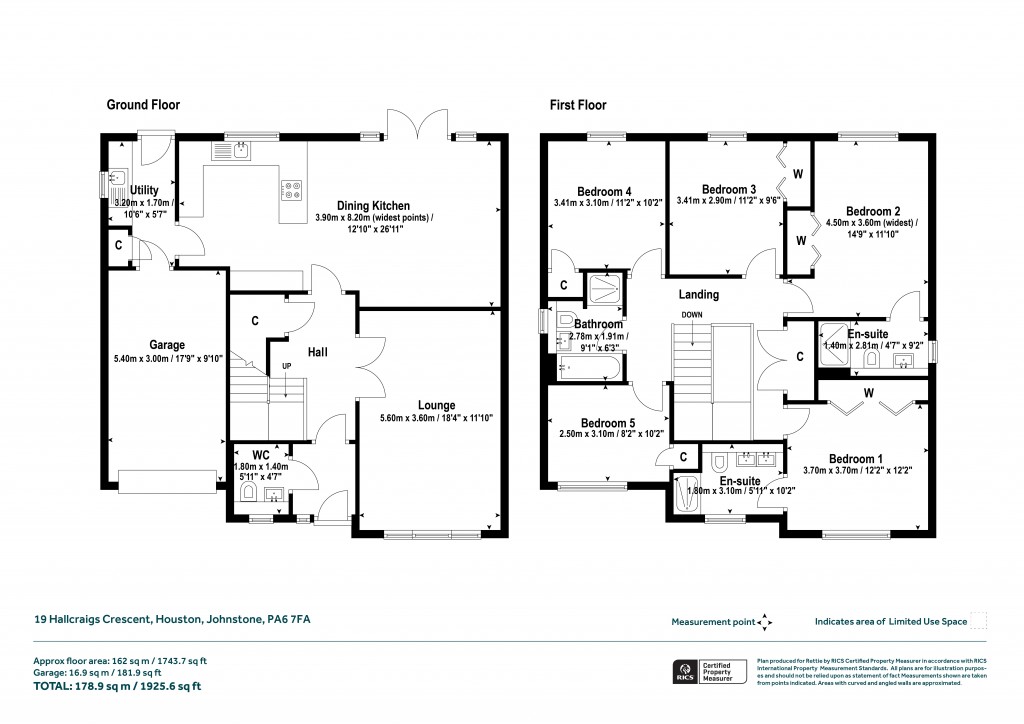
Floorplans For Houston
EPC Graph for Houston}

Description


This exceptional detached villa, constructed by Cala Homes in 2016, offers the ideal modern family lifestyle with spacious, versatile accommodation across two levels. Immaculately maintained and presented in true walk-in condition, this home features contemporary décor throughout and enjoys a prime location within walking distance of the highly regarded Gryffe High School. This is a highly desirable property in a much-admired exclusive development. Entry is via the hallway with WC leading to a bright and welcoming inner hallway. The spacious lounge is neutrally decorated and comes with a feature fireplace and inset living flame effect fire. To the rear there is an impressive open plan dining kitchen, very much the heart of the home, which comes with a contemporary fitted kitchen and Siemens integrated appliances. A separate utility room provides additional storage and access to the integral garage. A galleried landing leads to five generously proportioned bedrooms. The principal suite fitted wardrobes, and an en-suite bathroom. Bedroom two also features an en-suite and fitted storage, and there are a further two bedrooms and a large family bathroom. Cala Homes are an award-winning UK homebuilder who pride themselves on exceptional design standards. As you would expect, the property includes an impressive range of finishing touches from designer kitchen to sleek family bathrooms. Summary of Accommodation Ground Floor: Entrance hallway, WC, Lounge, Dining Kitchen, Utility Room, Integrated garage First Floor: Landing, Main Bedroom with Ensuite Shower Room, Second Bedroom with Ensuite Shower Room, 3 Bedrooms, Family Bathroom. Gardens The property sits in a quiet cul de sac with a monobloc driveway providing ample space for several vehicles. The gardens are laid mainly to lawn and include hedging, plants and shrubs. There is a rear decked terrace to enjoy the outdoors al fresco dining and outdoor living and raised tiered flowerbeds framed with upcycled railway sleepers. About the Area – Houston, Renfrewshire Nestled in the scenic Gryffe River Valley to the west of Glasgow, the village of Houston is a highly sought-after location, popular with commuters thanks to its excellent transport links. The nearby A737 provides swift access to the M8 motorway, Glasgow International Airport, and Glasgow city centre. For rail commuters, Johnstone Station offers park-and-ride facilities with regular services to both the city and the Clyde coast. Families are well served by education options in the area. Houston Primary School and Nursery, St. Fillan’s Primary School, and the acclaimed Gryffe High School all enjoy excellent reputations. For private education, St Columba’s School in nearby Kilmacolm is a well-regarded choice, with additional independent schools easily accessible in Glasgow. The village itself offers a warm, community feel with several local amenities including a doctor’s surgery, dental practice, shops, and welcoming pubs that serve food. A variety of leisure facilities are also close at hand, such as the Strathgryffe Tennis and Squash Club, a local bowling club, golf clubs in Bridge of Weir, and the nearby Ingliston Equestrian Centre. EPC: Band C Council Tax: G Tenure : Freehold

Reference: TCW250002

Request a viewing for this property

Simply fill out the form below or alternatively call us on 020 7839 0888

* Mandatory fields