Development Plot
£180,000
Pittenweem, Anstruther, Fife

Description


Property Details and Description

Summary of Plot
Planning Consent 25/00925/FULL - Erection of 2 dwelling houses with associated works (demolition of existing building)
The total Site Area = 395sq.m
Existing Building = 114sq.m
Proposed Building = 142sq.m = 36%
Garden Ground = 144sq.m = 37%
Paths & Parking = 99 sq.m = 27%

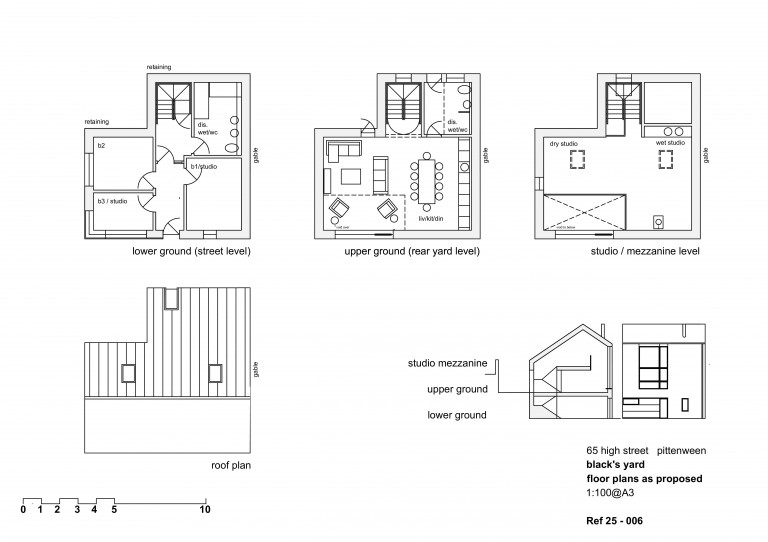
Western Property (Black’s Yard)

Lower Ground Floor: Flexible bedroom/home studio space (configured to facilitate independent Arts Festival access if required)
Upper Ground/First Floor: Flexible bedroom/home studio space
Mezzanine with attic: Flexible home studio space
Exterior: Private rear garden
Private (one space) and on-street parking

Eastern Property (Smokehouse)

Lower Ground Floor: Flexible bedroom/home studio space (configured to facilitate independent Arts Festival access if required)
Upper Ground/First Floor: Flexible home studio space
Exterior: Private rear garden
Private (one space) and on-street parking

Situation
Minutes from Pittenweem Harbour, 65 High Street enjoys a wonderful position in this idyllic East Neuk village. There are an array of amenities including a bakery, chemist, doctor’s surgery, post office, hairdressers, and grocery stores. In addition, there are bustling cafès, pubs, and restaurants to discover including the Clock Tower Café and the Dory Bistro and Gallery. Art galleries, boutiques, and gift shops sit side by side giving you the chance to peruse prints, ceramics, paintings, and more. Nearby Anstruther has an expansive Co-op Food along with an award-winning fish and chip shop. Primary school education is catered for and there is a high school in Anstruther. Further options for retail, dining, and leisure are available in the historic town of St Andrews, just under eleven miles away. Renowned as the “home of golf” it is also home to the internationally recognised University of St Andrews. Pittenweem is within easy reach of neighbouring scenic fishing villages including Anstruther, St Monans, and Crail. Dundee to the north is a forty-minute drive and Edinburgh is approx. 80 minutes by car or an hour by train from Leuchars. Centred around a working harbour embraced by several historic houses restored by The National Trust of Scotland, Pittenweem is a small and pretty fishing village in the East Neuk of Fife. Home to the renowned Pittenweem Arts Festival, celebrating its 40 year anniversary in 2025, there is much to do in the village and beyond. The Fife Coastal Path offers wonderful opportunities to explore this breathtaking part of the country either on foot or by bike with nearby villages including Anstruther and St Monans. The beautiful coastline means there are a wide variety of outdoor attractions for all ages to enjoy such as paddle boarding, wild swimming, and sailing or taking a dip in the tidal pool. Keen golf enthusiasts will be in their element with The Crail Golfing Society only a fifteen-minute drive. The 7 th oldest club in the world, it is home to two courses, the Balcomie Links and Craighead Links, both of which offer stunning views of the Forth and Tay Estuaries. Other local clubs to discover include those at Lundin Links and Kingsbarns and of course the world-famous Old Course at St Andrews. Interesting buildings to visit in the village include Kellie Lodge, a late 16 th century townhouse that was once the residence of the earls of Kellie, the parish church, and the ruins of the 12 th century Augustinian priory. St Fillan’s Cave is now a shrine to the saint and can be found beneath the priory. Balcaskie House and Kellie Castle are also well worth a visit. There are several attractive sandy beaches nearby including those at Elie and Earlsferry that are particularly popular in the height of summer. State schooling is provided locally at the primary level with high school provision in Anstruther. Private options are available at St Leonards in St Andrews and at The High School of Dundee. An efficient bus service connects Pittenweem to towns throughout Fife, and there are railway stations at Leuchars, Ladybank, Kirkcaldy and Markinch. Edinburgh International Airport is approximately one hour and twenty minutes away.

General Remarks & Information

Satellite Navigation
For the benefit of those with satellite navigation the property’s postcode is KY10 2PL.

Fixtures & Fittings
Only items specifically mentioned in the particulars of sale are included in the sale price.

Entry & Possession
Entry and vacant possession will be by mutual agreement and arrangement.

Local Authority
Fife Council

Offers
Offers should be submitted in Scottish Legal Form to the selling agents Rettie & Co at 28 Bell Street, St Andrews KY16 9UX.

Servitude Rights, Burdens & Wayleaves
The property is sold subject to and with the benefit of all servitude rights, burdens, reservations and wayleaves including rights of access and rights of way, whether public or private, light, support, drainage, water and wayleaves for masts, pylons, stays, cable, drains and water, gas and other pipes whether contained in the title deeds or informally constituted and whether or not referred to above.

Particulars and Plans
These particulars and plan are believed to be correct, but they are in no way guaranteed. Any error, omission or misstatement shall not annul the sale or entitle any party to compensation nor in any circumstances give grounds for action at law.

Websites and Social Media
This property and other properties offered by Rettie & Co. can be viewed on our website at www.rettie.co.uk as well as our affiliated websites at www.rightmove.co.uk zoopla.com, www.primelocation.com, www.s1homes.com and www.thelondonoffice.co.uk

Proof and Source of Funds/Anti Money Laundering
Under the HMRC Anti Money Laundering legislation all offers to purchase a property on a cash basis or subject to mortgage require evidence of source of funds. This may include evidence of bank statements/funding source, mortgage or confirmation from a solicitor the purchaser has the funds to conclude the transaction. All individuals involved in the transaction are required to produce proof of identity and proof of address. This is acceptable either as original or certified documents.

Misrepresentations
The property is sold with all faults and defects, whether of condition or otherwise and neither the seller nor Rettie & Co, the selling agent, are responsible for such faults and defects, nor for any statement contained in the particulars of the property prepared by the said agent.

The Purchaser(s) shall be deemed to acknowledge that he has not entered into contact in reliance on the said statements, that he has satisfied himself as to the content of each of the said statements by inspection or otherwise and that no warranty or representation has been made by the seller or the said agents in relation to or in connection with the property.

Any error, omission or misstatement in any of the said statements shall not entitle the purchaser(s) to rescind or to be discharged from this contract, nor entitle either party to compensation or damages nor in any circumstances to give either party any cause for action.

Important Notice
Rettie & Co., their clients and any joint agents give notice that:

They are not authorised to make or give any representations or warranties in relation to the property either in writing or by word of mouth. Any information given is entirely without responsibility on the part of the agents or the sellers. These particulars do not form part of any offer or contract and must not be relied upon as statements or representations of fact.

Any areas, measurements or distances are approximate. The text, photographs and plans are for guidance only and are not necessarily comprehensive and it should not be assumed that the property remains as photographed. Any error, omission or mis-statement shall not annul the sale, or entitle any party to compensation or recourse to action at law. It should not be assumed that the property has all necessary planning, building regulation or other consents, including for its current use. Rettie & Co. have not tested any services, equipment or facilities. Purchasers must satisfy themselves by inspection or otherwise and ought to seek their own professional advice.

All descriptions or references to condition are given in good faith only. Whilst every endeavour is made to ensure accuracy, please check with us on any points of especial importance to you, especially if intending to travel some distance. No responsibility can be accepted for expenses incurred in inspecting properties which have been sold or withdrawn.

Reference: STA250381

Request a viewing for this property

Simply fill out the form below or alternatively call us on 020 7839 0888

* Mandatory fields