3 Bedroom Flat
£570,000
St. Andrews, Fife

Floorplans For St. Andrews, Fife
EPC Graph for St. Andrews, Fife}

Description


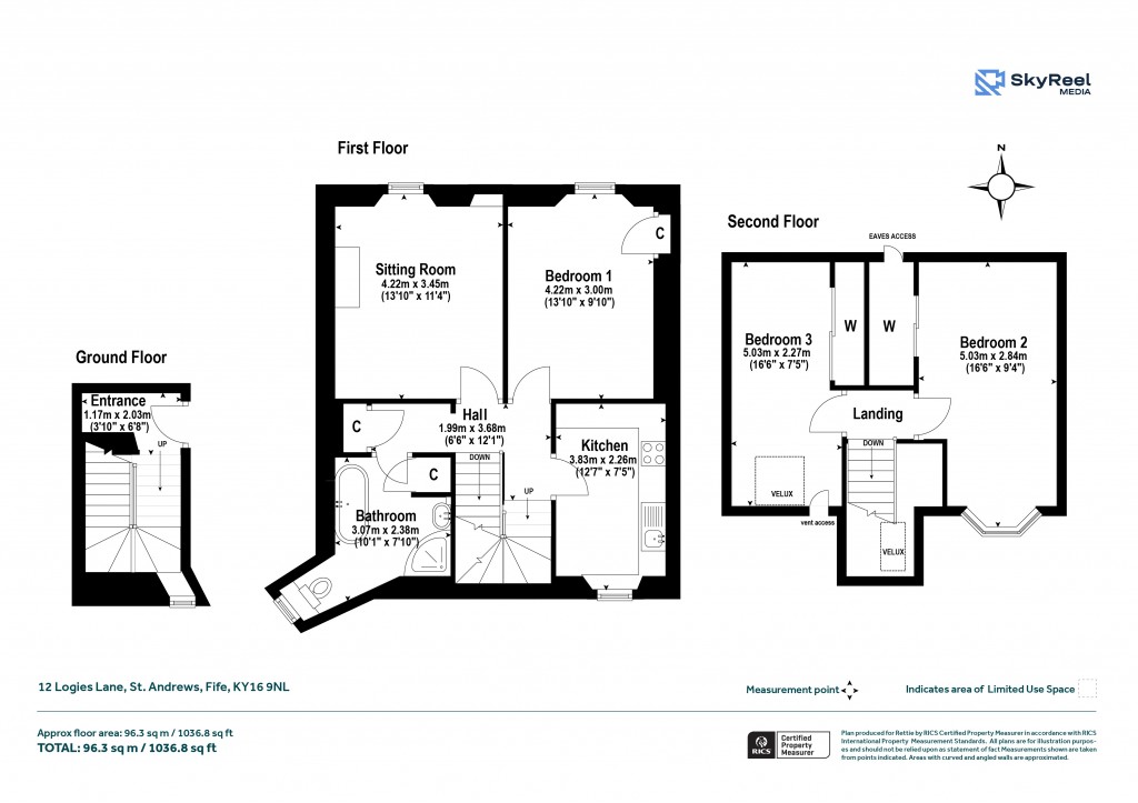
Summary of Accommodation

Ground Floor:
• Private entrance with entry phone system
• Inner hallway with stairs leading to the first floor
First Floor:
• Hallway providing access to all rooms
• Sitting room with feature fireplace and front-facing window overlooking Market Street
• Modern fitted kitchen with dining area, rear-facing window overlooking Logies Lane, complementary work surfaces, built-in appliances (cooker and gas hob), and ample wall and base units
• Double bedroom with front-facing window
• Bathroom with WC, wash hand basin, roll-top bath, and separate shower cubicle
Second Floor:
• Two further double bedrooms, both with built-in storage
• One bedroom with hatch access to eaves storage
Exterior:
• Shared garden ground, with a small private garden area to the side.
• Gas central heating
• HMO licence for three tenants

Location
Logies Lane occupies an exceptional position in the historic heart of St Andrews, just moments from Market Street, South Street, and North Street; the town’s three main thoroughfares, placing a superb range of amenities quite literally on the doorstep. Residents benefit from an abundance of boutique shops, independent cafés, award-winning restaurants, and traditional pubs, all within easy walking distance. The property is ideally situated for access to the University’s various departments and the world-famous golf courses and beaches for which St Andrews is internationally renowned.

The town is often referred to as the “Home of Golf”, with the iconic Old Course, Jubilee, New, and Castle Courses all managed by the St Andrews Links Trust. Beyond golf, St Andrews offers a wealth of recreational and cultural opportunities, including historic landmarks such as the Cathedral ruins, the Castle, and the beautiful West Sands Beach.

St Andrews also provides excellent educational facilities, with top-rated state schooling at Madras College and independent education available at St Leonards School. The town’s cosmopolitan character is enriched by the presence of the University of St Andrews, one of the oldest in the English-speaking world, established in 1413. Excellent transport links make St Andrews easily accessible. Leuchars Railway Station, approximately six miles away, provides regular services to Dundee, Edinburgh, and Aberdeen, while Dundee Airport (approx. 16 miles) offers flights to London and other UK destinations. The larger cities of Edinburgh, Perth, and Dundee are all within convenient driving distance, making St Andrews a highly desirable location for both permanent living and holiday residence.

General Remarks & Information

Fixtures and Fittings:
Only appliances specifically mentioned in the sales particulars are included in the sale price. In all other aspects the treatment of fixtures and fittings within the relevant Conveyancing Standard Clauses apply.
Furniture is available by separate negotiation.

Services:
Gas heating, mains water, electricity, broadband, telephone (subject to telephone providers’ regulations).

Viewing:
By appointment through St Andrews. 28 Bell Street, St Andrews, KY16 9UX. Email: standrews@rettie.co.uk Tel: 01334 237 700

Offers:
Offers should be submitted in Scottish Legal Form to the selling agents Rettie & Co. A closing date by which offers must be submitted may be fixed later. Please note that interested parties are advised to register their interest with the selling agents in order that they may be advised should a closing date be set. The seller reserves the right to accept any offer at any time.

Council Tax Band:
E

EPC Rating:
C

Postcode:
KY16 9NL

Tenure:
Freehold

Particulars Prepared:
15th October 2025

Internet Website
This property and other properties offered by Rettie & Co. & Rettie LLP's. can be viewed on our website at www.rettie.co.uk as well as Rightmove, OnTheMarket and The London Office.

Servitude Rights, Burdens & Wayleaves
The property is sold subject to and with the benefit of all servitude rights, burdens, reservations and wayleaves including rights of access and rights of way, whether public or private, light, support, drainage, water and wayleaves for masts, pylons, stays, cable, drains and water, gas and other pipes whether contained in the title deeds or informally constituted and whether or not referred to above.

Important Notice

Rettie, their clients and any joint agents give notice that:

They are not authorised to make or give any representations or warranties in relation to the property either in writing or by word of mouth. Any information given is entirely without responsibility on the part of the agents or the sellers. These particulars do not form part of any offer or contract and must not be relied upon as statements or representations of fact.

All Rettie floorplans are drawn to RICS standard. The text, photographs and plans are for guidance only and are not necessarily comprehensive and it should not be assumed that the property remains as photographed. Any error, omission or mis-statement shall not annul the sale or entitle any party to compensation or recourse to action at law. It should not be assumed that the property has all necessary planning, building regulation or other consents, including for its current use. Rettie & Co. & Rettie LLP’s have not tested any services, equipment or facilities. Purchasers must satisfy themselves by inspection or otherwise and ought to seek their own professional advice.

All descriptions or references to condition are given in good faith only. Whilst every endeavour is made to ensure accuracy, please check with us on any points of especial importance to you, especially if intending to travel some distance. No responsibility can be accepted for expenses incurred in inspecting properties which have been sold or withdrawn.

Reference: STA250348

Request a viewing for this property

Simply fill out the form below or alternatively call us on 020 7839 0888

* Mandatory fields