2 Bedroom Detached Commercial
£449,995
Lower Largo, Leven, Fife

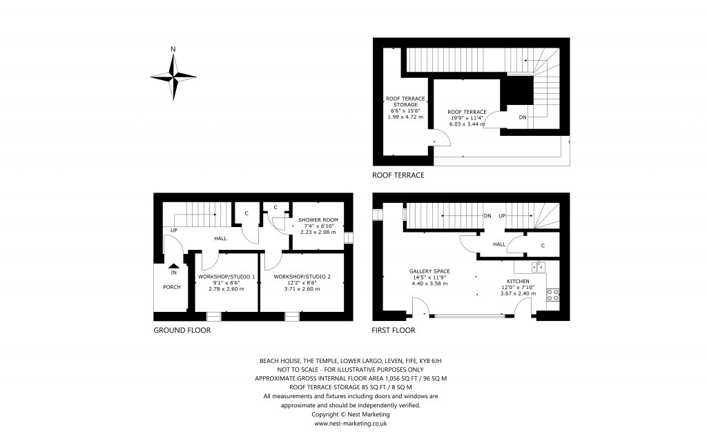
Floorplans For Lower Largo, Leven, Fife

Description


Property Details & Description
Accommodation

GROUND FLOOR
Porch, entrance hallway, two studios/workshops, shower room

FIRST FLOOR
Gallery space, kitchen, storage

SECOND FLOOR
Roof terrace and attic store

EXTERIOR
Roof Terrace

Situation
Newly constructed, and boasting panoramic views across The Firth of Forth, the Beach House lies in a truly spectacular position within the historic East Neuk village of Lower Largo, celebrated for its picturesque harbour and beach along with the renowned Crusoe seaside pub. Nearby Lundin Links offers residents a diverse variety of amenities including a bakery, butcher, and general store, with further shopping available in Leven. The famous 18-hole Links Course used as a qualifying course during the Open Championship at St Andrews and the Ladies 9-hole Course, the oldest in the world present excellent recreational opportunities. Other activities can be found at Lundin Sports Club with its tennis and squash courts and at the sports centre in Levenmouth with its gym, sauna, and swimming pool. Nearby Silverburn Park and Dumbarnie Links Nature Reserve are the perfect way to explore the great outdoors.

The idyllic Fife coast showcases picturesque former fishing villages, some of the most beautiful in Scotland along with tranquil beaches, historic harbours, and dramatic ruined castles. Charming villages such as Anstruther, Crail, Elie, and Pittenweem boast an array of restaurants, bars, watersports, and cultural attractions including the renowned Pittenweem Arts Festival. Globally renowned for its golf courses, the region boasts over 44, with championship courses at St Andrews and Kingsbarns. Notably, the acclaimed Dumbarnie Golf Course lies a short distance to the east. State schooling is available locally and private options include those at St Leonards in St Andrews and at The High School of Dundee. An efficient bus service connects towns throughout Fife, and there are railway stations at Leuchars, Cupar, Ladybank, and Dundee. Edinburgh is within an hour’s drive and the larger Fife towns of St Andrews, Glenrothes, Dundee, and Kirkcaldy are all within easy reach. Rail links are at Kirkcaldy, Leven, Markinch and Thornton. Edinburgh International Airport is under an hour away by car.

General Description
Newly constructed, and boasting breathtaking beach and Firth of Forth views, this outstanding architecturally designed commercial property in Lower Largo offers a rare and exceptional opportunity. Accessed via a gated private path just steps from the shore, a covered porch leads into a welcoming ground-floor hallway featuring built-in storage. Here, you’ll find two spacious and versatile studios/workshops, both finished with durable hard vinyl click flooring and a neutral décor. Each room enjoys panoramic views over The Firth of Forth and shares access to a stylish, fully tiled shower room complete with a chrome towel radiator, WC, and a wall-hung vanity unit with an integrated washbasin. A striking metal staircase with glass balustrade ascends to the first floor, revealing an impressive gallery-style space bathed in natural light from four expansive windows that perfectly frame the stunning coastal outlook. Designed with style and function in mind, the modern corner kitchen is equipped with an oven, induction hob, extractor hood, integrated dishwasher, and fridge/freezer, and also benefits from a convenient built-in store. The property benefits from white 60-minute fire internal doors, white skirtings and facings, and an electric combi boiler with wet system radiators.

EXTERIOR
Completing the layout is a roof terrace, a truly magnificent outdoor space where the sweeping surrounding landscape unfolds.

General Remarks & Information

Satellite Navigation
For the benefit of those with satellite navigation the property’s postcode is KY8 6JH

Fixtures & Fittings
Only items specifically mentioned in the particulars of sale are included in the sale price.

Entry & Possession
Entry and vacant possession will be by mutual agreement and arrangement.

Services
Mains water, electric and drainage.
Electric combi boiler for heating and hot water.

EPC Rating
TBC

Local Authority
Fife Council

Offers
Offers should be submitted in Scottish Legal Form to the selling agents Rettie & Co at 28 Bell Street, St Andrews KY16 9UX.

Deposit
A deposit of 10% of the purchase price may be required. It will be paid within 7 days of the conclusion of Missives. The deposit will be non-returnable in the event of the Purchaser(s) failing to complete the sale for reasons not attributable to the Seller or his agents.

Servitude Rights, Burdens & Wayleaves
The property is sold subject to and with the benefit of all servitude rights, burdens, reservations and wayleaves including rights of access and rights of way, whether public or private, light, support, drainage, water and wayleaves for masts, pylons, stays, cable, drains and water, gas and other pipes whether contained in the title deeds or informally constituted and whether or not referred to above.

Particulars and Plans
These particulars and plan are believed to be correct, but they are in no way guaranteed. Any error, omission or misstatement shall not annul the sale or entitle any party to compensation nor in any circumstances give grounds for action at law.

Websites and Social Media
This property and other properties offered by Rettie South LLP can be viewed on our website at www.rettie.co.uk as well as our affiliated websites at www.rightmove.co.uk zoopla.com, www.primelocation.com, www.s1homes.com and www.thelondonoffice.co.uk

Proof and Source of Funds/Anti Money Laundering
Under the HMRC Anti Money Laundering legislation all offers to purchase a property on a cash basis or subject to mortgage require evidence of source of funds. This may include evidence of bank statements/funding source, mortgage or confirmation from a solicitor the purchaser has the funds to conclude the transaction. All individuals involved in the transaction are required to produce proof of identity and proof of address. This is acceptable either as original or certified documents.

Misrepresentations

1. The property is sold with all faults and defects, whether of condition or otherwise and neither the seller nor Rettie & Co, the selling agent, are responsible for such faults and defects, nor for any statement contained in the particulars of the property prepared by the said agent.

2. The Purchaser(s) shall be deemed to acknowledge that he has not entered into contact in reliance on the said statements, that he has satisfied himself as to the content of each of the said statements by inspection or otherwise and that no warranty or representation has been made by the seller or the said agents in relation to or in connection with the property.

3. Any error, omission or misstatement in any of the said statements shall not entitle the purchaser(s) to rescind or to be discharged from this contract, nor entitle either party to compensation or damages nor in any circumstances to give either party any cause for action.

Important Notice

Rettie South LLP, their clients and any joint agents give notice that:

1. They are not authorised to make or give any representations or warranties in relation to the property either in writing or by word of mouth. Any information given is entirely without responsibility on the part of the agents or the sellers. These particulars do not form part of any offer or contract and must not be relied upon as statements or representations of fact.

2. Any areas, measurements or distances are approximate. The text, photographs and plans are for guidance only and are not necessarily comprehensive and it should not be assumed that the property remains as photographed. Any error, omission or mis-statement shall not annul the sale, or entitle any party to compensation or recourse to action at law. It should not be assumed that the property has all necessary planning, building regulation or other consents, including for its current use. Rettie South LLP have not tested any services, equipment or facilities. Purchasers must satisfy themselves by inspection or otherwise and ought to seek their own professional advice.

3. All descriptions or references to condition are given in good faith only. Whilst every endeavour is made to ensure accuracy, please check with us on any points of especial importance to you, especially if intending to travel some distance. No responsibility can be accepted for expenses incurred in inspecting properties which have been sold or withdrawn.

Reference: STA250241

Request a viewing for this property

Simply fill out the form below or alternatively call us on 020 7839 0888

* Mandatory fields