8 Bedroom Detached House
£975,000
Anstruther, Fife

Floorplans For Anstruther, Fife

Description


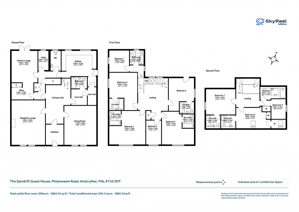
Summary of Accommodation

The Spindrift Guest House is arranged over multiple levels and offers well-balanced and flexible accommodation suited to both guest use and owner occupation.
• Eight en-suite bedrooms, comprising four double rooms and four king rooms, all tastefully decorated and equipped with televisions, hospitality trays and seating areas
• One en-suite bedroom located within a private wing, offering enhanced privacy
• Spacious dining room with seating for up to 16 guests
• Comfortable guest lounge accommodating at least 12 guests
• Additional private reading room on the first floor
• Honesty bar with dedicated fridge and wine cooler (property benefits from liquor licence)
• Fully equipped commercial kitchen with six-burner gas range, multiple fridges and freezers, and ample preparation space
• Extensive ancillary accommodation including laundry, pantry, office, cold room, workshop and basement liquor cellar
• Owners’ private accommodation with bathroom
• Fibre broadband throughout and modern fire safety systems
Externally, the property enjoys private off-road parking and a beautifully maintained walled garden, featuring a summer house and a variety of secluded seating areas, providing a tranquil retreat for guests.

Location
Anstruther is a charming and historic coastal town situated in the heart of the East Neuk of Fife, renowned for its picturesque harbour, vibrant community and outstanding natural scenery. The town sits along the shores of the Firth of Forth, with rugged coastline, sandy beaches and scenic walking routes forming part of the renowned Fife Coastal Path.

The surrounding area is rich in characterful villages including Pittenweem, Crail and Elie, each offering independent shops, galleries and renowned dining options. Anstruther itself enjoys a strong year-round tourism market, bolstered by local festivals, a thriving arts scene and celebrated food culture.

The property is ideally positioned for golf enthusiasts, with over 30 golf courses within easy reach, including the world-famous Old Course at St Andrews, located approximately eight miles away. Further championship courses at Carnoustie and Gleneagles are also readily accessible.

Excellent transport links connect Anstruther to St Andrews and the wider Fife region, while Edinburgh, Glasgow, Aberdeen and Balmoral Castle are all within comfortable driving distance. As the only four-star accommodation between Elie and St Andrews, The Spindrift Guest House occupies a highly advantageous position within the local hospitality market.

General Remarks & Information

Fixtures and Fittings:
Only appliances specifically mentioned in the sales particulars are included in the sale price. In all other aspects the treatment of fixtures and fittings within the relevant Conveyancing Standard Clauses apply.

Services:
Gas heating, mains water, electricity, broadband, telephone (subject to telephone providers’ regulations).

Viewing:
By appointment through St Andrews. 28 Bell Street, St Andrews, KY16 9UX. Email: standrews@rettie.co.uk Tel: 01334 237 700

Offers:
Offers should be submitted in Scottish Legal Form to the selling agents Rettie & Co. A closing date by which offers must be submitted may be fixed later. Please note that interested parties are advised to register their interest with the selling agents in order that they may be advised should a closing date be set. The seller reserves the right to accept any offer at any time.

EPC Rating:
G

Rateable value - £9,660

Postcode:
KY10 3DT

Tenure:
Freehold

Internet Website
This property and other properties offered by Rettie & Co. & Rettie LLP's. can be viewed on our website at www.rettie.co.uk as well as Rightmove, OnTheMarket and The London Office.

Servitude Rights, Burdens & Wayleaves
The property is sold subject to and with the benefit of all servitude rights, burdens, reservations and wayleaves including rights of access and rights of way, whether public or private, light, support, drainage, water and wayleaves for masts, pylons, stays, cable, drains and water, gas and other pipes whether contained in the title deeds or informally constituted and whether or not referred to above.

Important Notice

Rettie, their clients and any joint agents give notice that:

They are not authorised to make or give any representations or warranties in relation to the property either in writing or by word of mouth. Any information given is entirely without responsibility on the part of the agents or the sellers. These particulars do not form part of any offer or contract and must not be relied upon as statements or representations of fact.

The text, photographs and plans are for guidance only and are not necessarily comprehensive and it should not be assumed that the property remains as photographed. Any error, omission or mis-statement shall not annul the sale or entitle any party to compensation or recourse to action at law. It should not be assumed that the property has all necessary planning, building regulation or other consents, including for its current use. Rettie & Co. & Rettie LLP’s have not tested any services, equipment or facilities. Purchasers must satisfy themselves by inspection or otherwise and ought to seek their own professional advice.

All descriptions or references to condition are given in good faith only. Whilst every endeavour is made to ensure accuracy, please check with us on any points of especial importance to you, especially if intending to travel some distance. No responsibility can be accepted for expenses incurred in inspecting properties which have been sold or withdrawn.
Proof and source of Funds/Anti Money Laundering

Under the HMRC Anti Money Laundering legislation all offers to purchase a property on a cash basis or subject to mortgage require evidence of source of funds. This may include evidence of bank statements/funding source, mortgage or confirmation from a solicitor the purchaser has the funds to conclude the transaction.

All individuals involved in the transaction are required to produce proof of identity and proof of address. Rettie use electronic verification, if this is not possible original documents are acceptable.
Misrepresentations

The property is sold with all faults and defects, whether of condition or otherwise and neither the seller nor Rettie & Co. or Rettie LLP’s, the selling agent, are responsible for such faults and defects, nor for any statement contained in the particulars of the property prepared by the said agent.
The Purchaser(s) shall be deemed to acknowledge that they have not entered into contract in reliance on the said statements, that they are satisfied themselves as to the content of each of the said statements by inspection or otherwise and that no warranty or representation has been made by the seller or the said agents in relation to or in connection with the property.

Any error, omission or misstatement in any of the said statements shall not entitle the purchaser(s) to rescind or to be discharged from this contract, nor entitle either party to compensation or damages nor in any circumstances to give either party any cause for action.

Reference: STA230036

Request a viewing for this property

Simply fill out the form below or alternatively call us on 020 7839 0888

* Mandatory fields