3 Bedroom Terraced House
£1,775 PCM
Chesham, Buckinghamshire

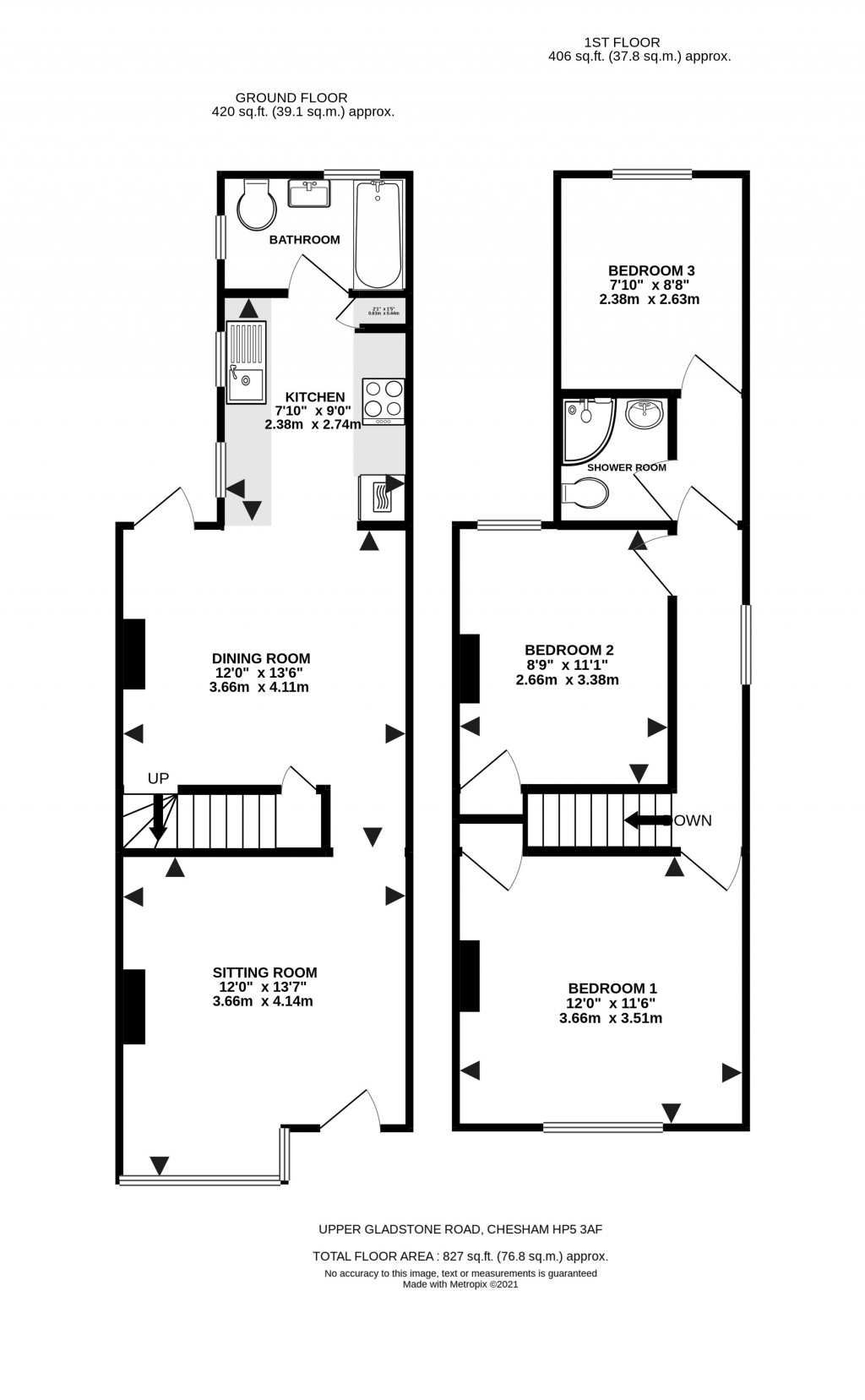
Floorplans For Chesham, Buckinghamshire
EPC Graph for Chesham, Buckinghamshire}

Description


This character property has been tastefully refurbished throughout offering generous sized family living space.
The accommodation comprises of a sitting room with Square bay window, laminate flooring and spot lighting with dimmer switch. The rear of the property has been opened up to create a great entertaining space with laminate flooring throughout. The kitchen has been thoughtfully designed with a range of soft close base and wall mounted units, Zenith marble effect work surfaces, composite sink with mixer tap, touch screen electric fan oven, electric hob with tiled splash back and extractor above. Integrated appliances include a fridge/freezer, dishwasher and washing machine. The bathroom is fitted with a full-size bath with shower over and rainfall shower head with handheld attachment, basin with mixer tap and toilet.

To the first floor are three bedroom all with original cast iron fireplaces and two with a built-in cupboards, there is also a separate shower room.

Outside
To the front the property is accessed by a pathway to the front door, gravel area with Buxton hedging. The rear garden has a patio area with outside tap, there will be steps to the rear garden which is mainly laid to lawn.
Sovereign Estates

Sovereign Estates

211c High Street
Berkhamsted
Hertfordshire
HP4 1AD

+44 (0)1442 967550

Reference: SOV240098

Request a viewing for this property

Simply fill out the form below or alternatively call us on 020 7839 0888

* Mandatory fields