2 Bedroom Duplex Flat
£180,000
Shawlands

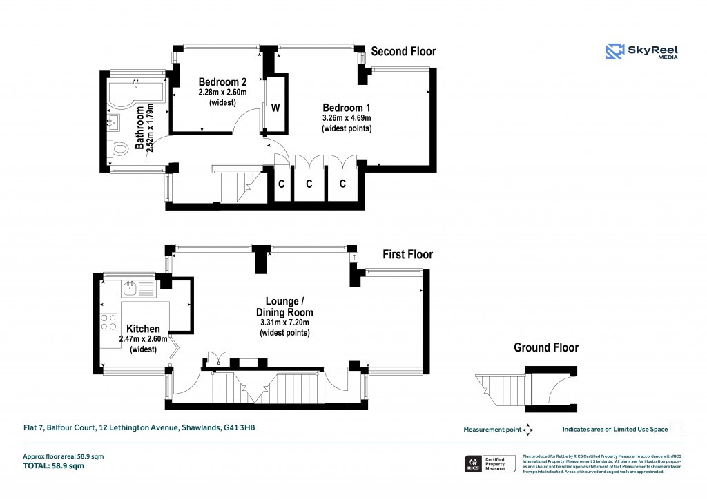
Floorplans For Shawlands
EPC Graph for Shawlands}

Description


An exceptional duplex flat forming part of this incredibly popular development in the heart of Shawlands. This stunning two bedroomed flat offers generous accommodation over two levels that is in outstanding condition, a must for viewing in order to be appreciated. The flat is accessed via your own private main door entrance with private stair access to the first floor. The accommodation of the flat itself comprises fabulous lounge/dining space with open aspect, newly fitted kitchen with a range of base and wall mounted units and tiled splashback. On the top floor there is a beautiful tiled bathroom with white three piece suite and vanity unit, bedroom two with integrated wardrobes that could easily be utilised as a home office or study, bedroom one with fabulous open aspect and generous cupboard space. The property also benefits from double glazing, modern electric heating, high quality floor coverings and a modern, stylish decor throughout. Externally there is also an allocated parking space and fabulous communal gardens. Shawlands is considered by many to be the "brunch capital" of Glasgow. While the brunch spots are excellent and numerous, there are also a wide range of other amenities including restaurants, bars, parks and much more. This flat is perfectly situated to enjoy everything that Shawlands has to offer, including Queens Park at the end of the street as well as excellent transport links with Pollokshaws East and Crossmyloof a short walk away.

Reference: SHA260021

Request a viewing for this property

Simply fill out the form below or alternatively call us on 020 7839 0888

* Mandatory fields