2 Bedroom Ground Floor Flat
£260,000
Mount Florida, Glasgow

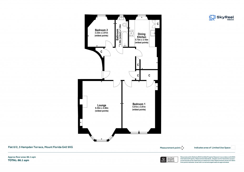
Floorplans For Mount Florida, Glasgow
EPC Graph for Mount Florida, Glasgow}

Description


A beautiful two bedroomed, ground floor flat with some of the finest views the Southside of Glasgow has to offer, combined with your own private front garden. Situated on Hampden Terrace, perhaps Mount Florida's most prestigious street, this sizeable flat offers generous accommodation and a range of period features. A must for viewing in order to be appreciated. This blonde sandstone tenement building is accessed via secure door entry system into a well-kept communal close. The accommodation of the flat itself comprises sizeable reception hallway with two cupboards off, gorgeous bay windowed lounge with cornicing and feature fireplace, stunning dining sized kitchen with a range of base mounted units, tiled splashback, bespoke window seat and dining recess, double sized bedroom one with cornicing and large walk-in cupboard off, second double sized bedroom that could also be utilised as a home office or study and a bathroom with white three piece suite and over bath shower. The property also benefits from double glazing, gas central heating, high quality floor coverings and a range of period features including cornicing, original doors and functioning shutters. There is also a private front garden space, along with a communal rear garden. Hampden Terrace is situated in Mount Florida which has an impressive number of local amenities and transport links. These include independent shops, art studio and popular restaurants and eateries including the likes of Cafe Salmagundi, Bucks Bar and Hooked. As well as frequent bus and rail services, Mount Florida is extremely well placed for commuting access to the M77 and M8. The beautiful Queens Park is nearby, which hosts a number of community events throughout the year and has a tennis club, glasshouses and extensive views across the city and beyond.

Reference: SHA250850

Request a viewing for this property

Simply fill out the form below or alternatively call us on 020 7839 0888

* Mandatory fields