2 Bedroom Ground Floor Flat
£180,000
Shawlands, Glasgow

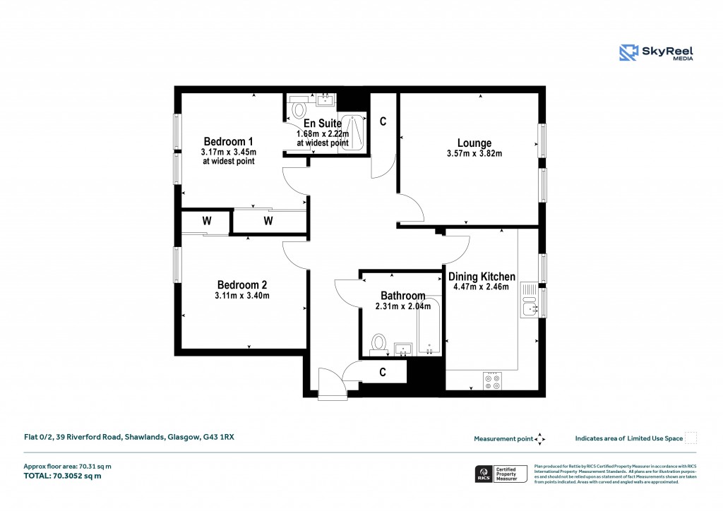
Floorplans For Shawlands, Glasgow
EPC Graph for Shawlands, Glasgow}

Description


A well-presented two-bedroom, ground floor flat set within a popular and convenient residential address in Shawlands. The building is entered via a well-maintained communal close, with the accommodation arranged comfortably on one level. The property opens into a welcoming reception hallway with useful storage cupboards. The lounge is bright and generously proportioned, offering an attractive space for everyday living and entertaining. To the rear, the dining kitchen provides ample room for a table and chairs and is fitted with a range of base and wall-mounted units, further benefiting from an instant boiling water tap and a waste disposal unit. There are two well-proportioned double bedrooms, one of which benefits from a tiled en-suite shower room with walk-in shower. The second bedroom is equally generous and offers excellent flexibility, lending itself well to use as a guest bedroom or home office. A well-appointed family bathroom, fitted with a three-piece suite, completes the accommodation. The property further benefits from gas central heating, double glazing throughout, and access to communal garden grounds to the rear, along with a private parking space. Riverford Road is well placed for a wide range of amenities in Shawlands and Strathbungo, including independent cafes, restaurants and shops, as well as excellent public transport links providing easy access to Glasgow city centre and surrounding areas.

Reference: SHA250845

Request a viewing for this property

Simply fill out the form below or alternatively call us on 020 7839 0888

* Mandatory fields