3 Bedroom Ground Floor Flat
£390,000
Pollokshields, Glasgow

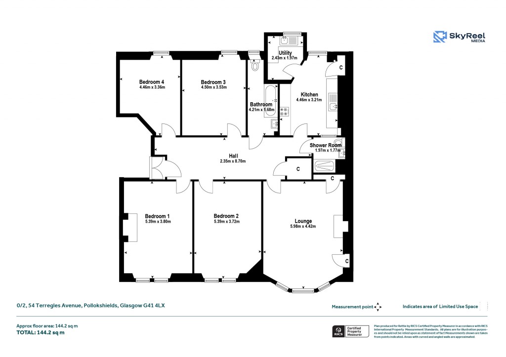
Floorplans For Pollokshields, Glasgow
EPC Graph for Pollokshields, Glasgow}

Description


0/2 54 Terregles Avenue is a fabulous blonde sandstone ground floor flat, enjoying bright, open aspects to the front and presented to the market in walk-in condition. This substantial five-apartment period town flat also benefits from a private front garden and was built by the renowned Glasgow architect H. E. Clifford in 1895. Internally, the property retains a number of period features, including cornice work, internal wooden shutters and stripped floorboards. The property is bright and spacious and benefits from excellent storage throughout. The complete accommodation, accessed via a secure door entry system, extends to a well-maintained residents’ stairwell with original tiles, entrance vestibule and an impressive welcoming reception hallway. The accommodation further comprises an outstanding bay-windowed lounge/diner, a substantial principal bedroom and three further double bedrooms, one currently utilised as a second sitting room/music room and one as an art/storage room. Looking out to the communal gardens at the rear is the fitted kitchen, which includes a range of floor and wall-mounted units, with a utility room located off. Completing the accommodation is a bright family bathroom fitted with a bath, along with a separate contemporary shower room. The specification includes timber casement-style windows, gas central heating and a security-controlled door entry system. Internally, the property has been tastefully decorated throughout in neutral tones. Local Area The property is situated within walking distance of thriving coffee shops, restaurants and independent shops on Nithsdale Road/Kildrostan Street and nearby Pollokshaws Road. A small Sainsbury’s store is located just a few minutes’ walk away on Darnley Road. Recreational pursuits can be found at Maxwell Park, Queen’s Park and Pollok Country Park, home to Pollok House and the world-famous Burrell Collection, as well as at Titwood Tennis and Bowling Club and Clydesdale Cricket Club. The flat is situated immediately opposite Pollokshields West railway station, with trains running every half hour (and more frequently during peak times) to Glasgow Central Station, with a journey time of approximately 6–8 minutes. The city centre is also easily accessed via the numerous bus services operating along Pollokshaws Road.

Reference: SHA250834

Request a viewing for this property

Simply fill out the form below or alternatively call us on 020 7839 0888

* Mandatory fields