2 Bedroom Ground Floor Flat
£205,000
Pollokshields, Glasgow

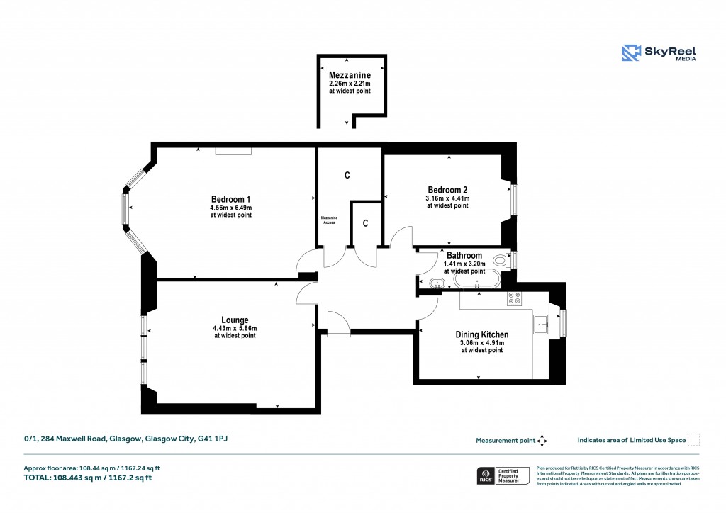
Floorplans For Pollokshields, Glasgow
EPC Graph for Pollokshields, Glasgow}

Description


**CLOSING DATE TUESDAY 13TH JANUARY AT 12PM** A stunning, larger style two bedroomed ground floor flat situated in this convenient pocket of Pollokshields. Having undergone extensive improvements under the current owner, this beautiful flat is a must for viewing in order to be appreciated. This blonde sandstone tenement building is accessed via secure door entry system into a well-kept communal close. The accommodation of the flat itself comprises welcoming reception hallway with cupboard off and huge walk-in wardrobe area with separate mezzanine, sizeable lounge with refurbished floorboards, impressive dining sized kitchen with a range of base and wall mounted units, tiled splashback and ample space for dining table and chairs, expansive bay windowed bedroom one with refurbished floorboards, second double sized bedroom that could easily be utilised as a home office or study and a stunning tiled bathroom with bespoke wash hand basin, clawfoot bath and W.C. The property also benefits from double glazing, gas central heating and a modern, contemporary decor throughout. Externally there is a private garden space to the front, along with a communal rear garden. Pollokshields is one of the most popular areas anywhere in the West of Scotland. The combination of amenities and transport links are second to none. There is a particularly impressive range of restaurants, bars and cafes in Pollokshields itself as well as nearby Strathbungo and Shawlands all within walking distance. The position of the property is also extremely convenient for easy access to Glasgow City Centre by any number of methods including by bike, car, train, bus or subway.

Reference: SHA250829

Request a viewing for this property

Simply fill out the form below or alternatively call us on 020 7839 0888

* Mandatory fields