2 Bedroom Semi Detached House
£190,000
Mosspark, Glasgow

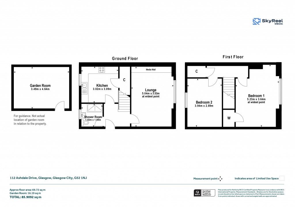
Floorplans For Mosspark, Glasgow
EPC Graph for Mosspark, Glasgow}

Description


A well-proportioned two-bedroom semi-detached terraced house set within a popular southside address. The property offers flexible accommodation over two levels, along with the added benefit of a garden room. The accommodation on the ground floor comprises a welcoming entrance hallway, a bright and generously sized lounge with defined space for living and dining, and a fitted kitchen positioned to the rear. The kitchen is fitted with a range of base and wall-mounted units and provides direct access to the rear garden. Also on the ground floor is a contemporary, fully tiled shower room, fitted with a walk-in shower. On the upper level, there are two well-proportioned double bedrooms, both benefiting from built-in storage. The principal bedroom is particularly generous, and the second bedroom offers excellent flexibility and would be well suited as a guest room, home office or study. The property enjoys private garden grounds, along with a detached garden room providing a stylish and adaptable space suited to home working, hobbies or leisure. Further benefits include double glazing and central heating throughout. Ashdale Drive is well placed for a wide range of local amenities and schooling, with excellent public transport links and road connections providing easy access to Glasgow city centre and beyond.

Reference: SHA250815

Request a viewing for this property

Simply fill out the form below or alternatively call us on 020 7839 0888

* Mandatory fields