2 Bedroom Ground Floor Flat
£139,000
Bridgeton, Glasgow City

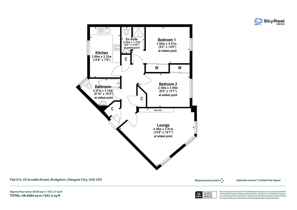
Floorplans For Bridgeton, Glasgow City
EPC Graph for Bridgeton, Glasgow City}

Description


Situated in an elevated ground floor position, this bright and stylish two-bedroom flat has an en-suite, great storage and is located within the Silvergrove Arcadia Street development in Bridgeton, an area on the east edge of the city centre and with both Glasgow Green arguably the oldest and most established of the city's parks and within walking distance of the city centre. This popular modern development has attractive residents’ lawned grounds and has the significant advantage of residents and guest parking. The property extends to 657 sq ft and would suit a wide range of buyers with the locale offering easy transport links by both road and rail and with the nearby M74 only a mile away. Ideal for residential buyers and investors alike. The property has been modernised and improved during it’s current ownership and is accessed through a security entry to communal close. Internally the property comprises of welcoming, L-shaped reception hall with laminate flooring and three good storage cupboards; there is a bright and spacious angled living room with dual aspects west and a bespoke media wall with space for large TV and with feature fireplace, re-fitted modern kitchen with a range of base and wall mounted units and integrated oven hob and hood and space for dining; there are two double bedrooms, both with fitted wardrobes and one with an en suite shower room and there is a three-piece bathroom with over bath shower. The property has fresh décor, double glazing and a recently re-fitted combi boiler for gas central heating. Situation: The location is superb with a range of amenities and public transport links just minutes away in the city centre. The property is well placed for both Dennistoun and Glasgow’s City Centre particularly the very popular Merchant City and surrounding Glasgow Green Park. A great opportunity for young professionals working in the City Centre or students and ideal for commuting with Bridgeton Station only a short walk away. Travel Directions: On foot from George Square head south down Hanover Street onto Miller Street, when you reach Argyle Street, turn left onto Argyle Street and continue along to Trongate, past Toll Cross and on onto London Road. You can continue straight through Glasgow Green and the Peoples Palace and fountain towards Templeton Street or follow London Road round, turning right into Arcadia Street where you will find the entrance to No. 63 almost half way down on the left-hand side.

Reference: SHA250809

Request a viewing for this property

Simply fill out the form below or alternatively call us on 020 7839 0888

* Mandatory fields