3 Bedroom Terraced House
£235,000
Merrylee, Glasgow

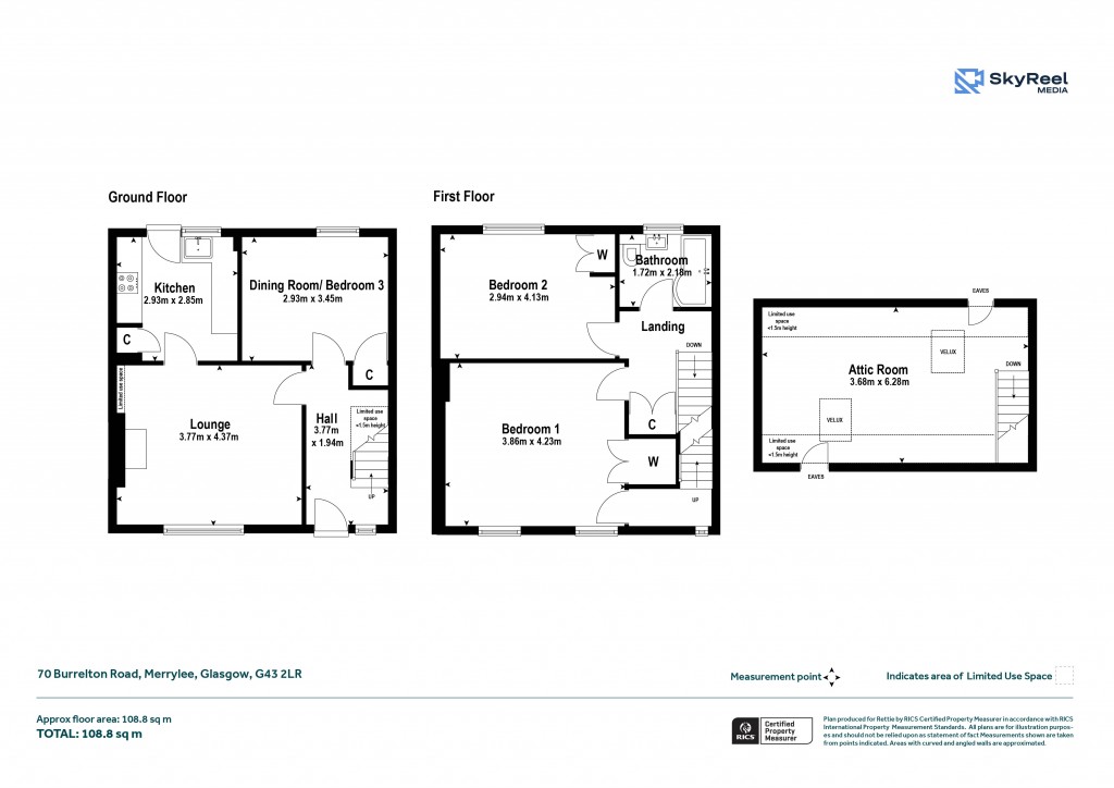
Floorplans For Merrylee, Glasgow
EPC Graph for Merrylee, Glasgow}

Description


**Closing date Tuesday 20th of January at 2.00pm** A beautiful three bedroom, mid terraced house situated in this quiet yet convenient pocket of Merrylee. The house is approached via monoblocked driveway and steps leading to the front door. The accommodation of the house itself comprises welcoming reception hallway, spacious lounge with feature fireplace, kitchen with a range of base mounted units, shelving, tiled splashback and access out to the rear garden and dining room that could easily be utilised as a third bedroom. Upstairs the accommodation comprises second double sized bedroom with aspect out to the rear garden, sizeable bedroom one with walk-in wardrobe and access through to a fixed staircase up to the attic room which offers great flexibility. The property also benefits from double glazing, gas central heating, high quality floor coverings and a modern, contemporary decor throughout. Externally there is aforementioned front driveway with space for two cars and a generous rear garden with two separate patio areas and lawn. Merrylee is a quiet suburb situated in the south of Glasgow. It has a quiet ambience, access to popular parks, and range of nearby amenities making it an attractive area to live. There are also excellent transport links nearby via bus road and rail to the centre of Glasgow and elsewhere, with Cathcart and Langside Train Stations providing regular services to and from Glasgow Central and being only a short walk away.

Reference: SHA250808

Request a viewing for this property

Simply fill out the form below or alternatively call us on 020 7839 0888

* Mandatory fields