2 Bedroom Duplex Flat
£155,000
Shawlands, Glasgow

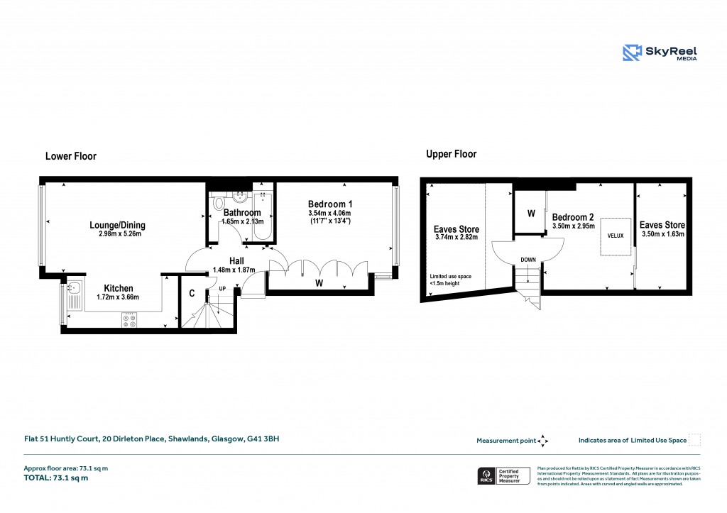
Floorplans For Shawlands, Glasgow
EPC Graph for Shawlands, Glasgow}

Description


**Closing date Thursday 15th of January at 12.00pm** A quite unique duplex flat forming part of this popular development in the heart of Shawlands. The building is accessed via secure door entry system into a well-kept communal close and stairwell. The accommodation of the flat itself comprises welcoming reception hallway with cupboard off, lounge/dining room with fabulous open aspect out over the communal gardens and feature fireplace, open plan onto the kitchen with a range of base and wall mounted units, tiled splashback and breakfast bar, double sized bedroom one with integrated wardrobes and tiled bathroom with white three piece suite and vanity unit. Upstairs the accommodation comprises bedroom two with integrated wardrobes and separate eaves storage. The property also benefits from double glazing, gas heating and quality floor coverings throughout. Externally there are well-kept communal gardens and your own private parking space. Shawlands is considered by many to be the "brunch capital" of Glasgow. While the brunch spots are excellent and numerous, there are also a wide range of other amenities including restaurants, bars, parks and much more. This flat is perfectly situated to enjoy everything that Shawlands has to offer, including Queens Park at the end of the street, as well as excellent transport links with Pollokshaws East and Crossmyloof a short walk away.

Reference: SHA250779

Request a viewing for this property

Simply fill out the form below or alternatively call us on 020 7839 0888

* Mandatory fields