4 Bedroom Upper Floor Flat
£399,000
Pollokshields, Glasgow

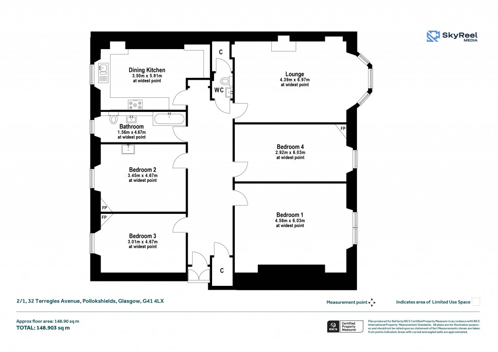
Floorplans For Pollokshields, Glasgow
EPC Graph for Pollokshields, Glasgow}

Description


A fabulous top floor, five apartment flat situated in this incredibly convenient pocket of Pollokshields. Enjoying a southside position, fabulous open aspects with a generous interior and range of period features; this stunning flat is a must for viewing in order to be appreciated. This red sandstone tenement building is accessed via secure door entry system into a pristinely kept communal close and stairwell, where the flat is entered on the top (second) floor. The accommodation of the flat itself comprises expansive reception hallway with cupboard and W.C. off with two piece suite, fabulous bay windowed lounge with cornicing, feature surround with wood burning stove and spectacular view, bespoke dining sized kitchen with a range of base mounted units and in-built seating in the dining recess. There are four double sized bedrooms, all of which can be utilised very flexibly with bedrooms two and 3 enjoying feature fireplaces. The property also benefits from double glazing, gas central heating, high quality floor coverings, period features including cornicing, original doors and fireplaces and a modern, stylish decor throughout. Externally there is a delightful communal rear garden. Terregles Avenue is within walking distance of many amenities on Nithsdale Road/Kildrostan Street where coffee shops, restaurants, gastropubs and boutiques are found. More extensive amenities are available at the Crossmyloof Morrisons store or the Sainsburys store on Darnley Road. Local recreational pursuits are namely at Maxwell Park, Pollok Park or Queens Park (all within two miles of the property). Transport links are in plentiful supply with three train lines to Glasgow Central within easy walking distance, all just one stop from the city centre. There are also a number of regular bus routes locally whilst the M77 and M8 connect Glasgow to the motorway network.

Reference: SHA250759

Request a viewing for this property

Simply fill out the form below or alternatively call us on 020 7839 0888

* Mandatory fields