4 Bedroom Detached House
£360,000
Cambuslang, Glasgow, South Lanarkshire

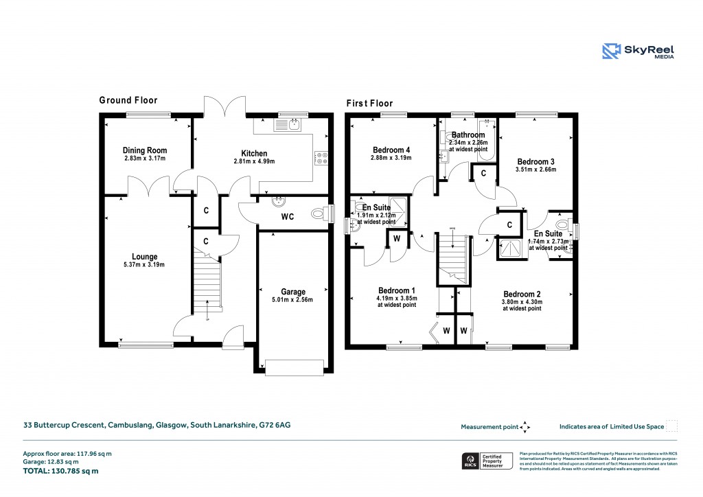
Floorplans For Cambuslang, Glasgow, South Lanarkshire
EPC Graph for Cambuslang, Glasgow, South Lanarkshire}

Description


**FIXED PRICE UNDER HOME REPORT VALUE** A stunning detached four bedroomed villa forming part of Newton Farm development. The house is approached via monoblocked driveway and lawned front garden leading to the front door. The accommodation of the house itself comprises welcoming reception hallway with understairs cupboard and W.C. off, spacious lounge with double door access through to the dining room, kitchen with a range of integrated appliances, base and wall mounted units, tiled splashback and breakfast bar. Upstairs the accommodation comprises double sized bedroom one with integrated wardrobes and tiled en-suite shower room off, second and third double sized bedrooms that share a Jack & Jill en-suite, fourth bedroom that could easily be utilised as a home office or study and a tiled bathroom with white three piece suite. The property also benefits from double glazing, gas central heating, high quality floor coverings and a modern, contemporary decor throughout. Externally there is the aforementioned front garden, driveway and generous rear garden with separate lawn and patio. Buttercup Crescent is set within the modern Newton Farm development on the outskirts of Cambuslang, and is well placed for schooling and public transport facilities. Cambuslang is a very popular suburb of Glasgow and provides excellent transport links into the city centre by bus or train from nearby Newton train station or if traveling by car, the M74 and M8 motorways provide great links to Glasgow and the surrounding towns.

Reference: SHA250750

Request a viewing for this property

Simply fill out the form below or alternatively call us on 020 7839 0888

* Mandatory fields