1 Bedroom Ground Floor Flat
£180,000
Festival Park, Glasgow

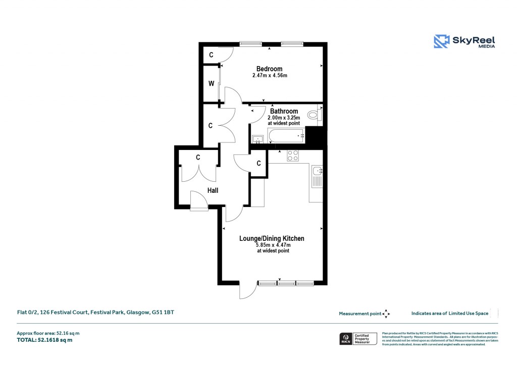
Floorplans For Festival Park, Glasgow
EPC Graph for Festival Park, Glasgow}

Description


A well-presented one-bedroom ground floor apartment set within a modern residential development in Festival Park and enjoys a pleasant, tree-lined outlook within well-maintained landscaped grounds. The accommodation is entered via a shared, security-controlled entrance leading into a welcoming reception hallway with useful storage cupboards. To the rear of the property is a stunning open-plan lounge, dining area and kitchen, forming a bright and free-flowing living space ideal for modern living. This impressive room benefits from large windows and patio doors which open directly out, allowing an abundance of natural light and enhancing the connection with the surrounding gardens. The kitchen is fitted with a quality range of base and wall-mounted units, complementary work surfaces, coordinated splashback tiling and integrated appliances, with ample space for both dining and relaxing. The double bedroom is generously proportioned and features integrated wardrobes along with large windows providing excellent natural light. A well-appointed, contemporary bathroom fitted with a white three-piece suite and shower over the bath completes the accommodation. Further benefits include tasteful décor throughout, quality fixtures and fittings, gas central heating and double glazing. Externally, the property is set within well-tended residents’ gardens and further benefits from private residents’ off-street parking. Festival Court is ideally located within Pacific Quay, close to the BBC Scotland headquarters and a wide range of amenities. The city centre is easily accessible, while Finnieston, the West End and the Clyde waterfront are all within easy reach. Excellent road links, public transport connections and nearby green spaces further enhance the appeal of this desirable location.

Reference: SHA250748

Request a viewing for this property

Simply fill out the form below or alternatively call us on 020 7839 0888

* Mandatory fields