Description
Occupying a desirable top-floor position within a traditional red sandstone tenement, this bright and spacious one-bedroom flat offers stylish, modern living space while retaining the character and charm typical of Mount Florida properties.
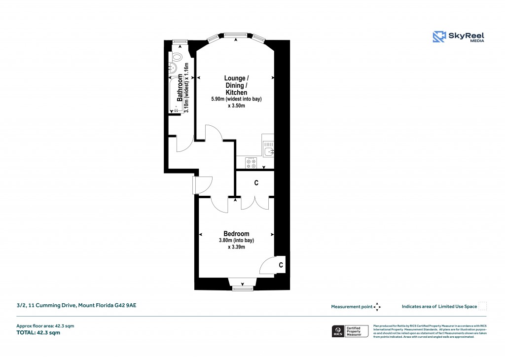
The accommodation comprises a welcoming reception hallway, a generous open-plan lounge and dining kitchen, a spacious double bedroom with built-in wardrobes, and a well-appointed bathroom.
The open-plan living area is a large and beautifully bright space enhanced by impressive bay windows that flood the room with natural light. The kitchen is neatly integrated within this space, offering a range of contemporary wall and floor-mounted units, ample worktop space, and room for dining.
The bedroom is a generous double with fitted wardrobes, providing excellent storage and a comfortable, well-proportioned layout. The bathroom is modern and well-presented, featuring a three-piece suite with shower over bath and quality finishes.
Throughout, the property is tastefully decorated, combining traditional tenement living with contemporary styling to create a warm and inviting home.
Ideally located in the heart of Mount Florida, the flat is within easy reach of local shops, cafés, bars, and restaurants, as well as excellent public transport links via Mount Florida train station, providing quick and convenient access to Glasgow city centre and surrounding areas.