2 Bedroom First Floor Flat
£150,000
Cessnock, Glasgow

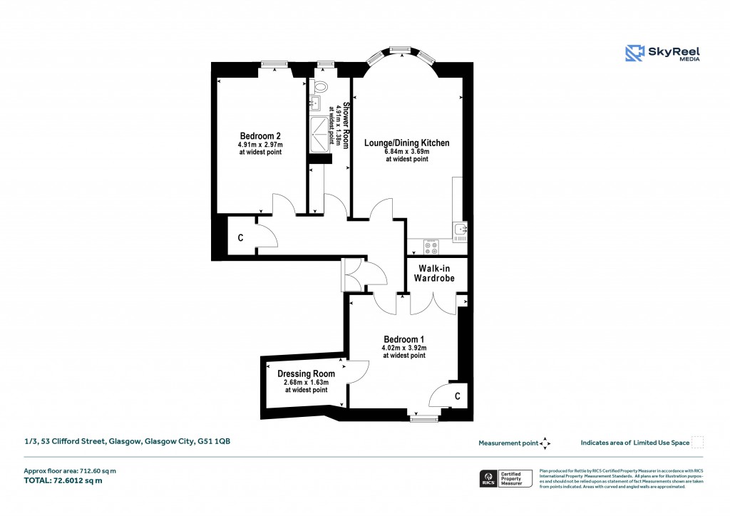
Floorplans For Cessnock, Glasgow
EPC Graph for Cessnock, Glasgow}

Description


An impressive two bedroomed, first floor flat situated in this convenient pocket of Cessnock. This blonde sandstone tenement building is accessed via secure door entry system into a communal close and stairwell, where the flat is accessed on the first floor. The accommodation of the flat itself comprises welcoming reception hallway with cupboard off, delightful bay windowed lounge with cornice plaster, open plan onto the modern kitchen with a range of base and wall mounted units, tiled splashback, double sized bedroom one with walk-in wardrobe and separate dressing room off, second double sized bedroom and stunning tiled shower room with white two piece suite, vanity unit and utility area. The property also benefits from a combination of UPVC double glazing, single and secondary glazing, gas central heating and a modern, neutral decor throughout. Externally there is a communal rear garden. The property is very well placed for local amenities, such as the QEU hospital as well as public transport. Also close by is access to the motorway network ensuring swift commuting on the M8, M77 and M74 motorways. Govan Subway Station is also a short distance away giving access to Glasgow's West End & City Centre. The local area is undergoing significant development and work is due to begin on the Govan to Partick footbridge.

Reference: SHA250725

Request a viewing for this property

Simply fill out the form below or alternatively call us on 020 7839 0888

* Mandatory fields