2 Bedroom Upper Floor Flat
£225,000
Mount Florida

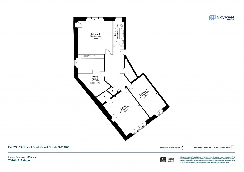
Floorplans For Mount Florida
EPC Graph for Mount Florida}

Description


**Closing date Wednesday 12th of November at 2.00pm** Located in the heart of Mount Florida, this impressive second-floor tenement flat offers a superb blend of period character, generous proportions, and modern style. The accommodation comprises a large reception hallway with excellent storage, a bright and spacious lounge, a stylish dining kitchen, two large double bedrooms, and a well-presented bathroom. The lounge is an elegant and inviting space, featuring large windows that fill the room with natural light and highlight the property’s traditional charm. The dining kitchen is a particular highlight, a wonderful size for both cooking and entertaining, with a range of wall-mounted and floor-standing units, ample worktop space, and plenty of room for a dining table. Both bedrooms are well-proportioned doubles while the bathroom is attractively finished with a modern three-piece suite including shower over bath. Throughout the property, high ceilings, detailed cornicing, and timber sash windows enhance the sense of space and light, while tasteful décor complements the traditional tenement features. Additional storage is provided off the hallway and lounge, adding practicality to the home. The home is further enhanced by gas central heating and double glazing, with acoustic glazing providing improved sound insulation. Ideally positioned close to Mount Florida’s vibrant range of local shops, cafés, and restaurants, the flat also offers excellent transport links, including Mount Florida train station just a short walk away, providing easy access to Glasgow city centre and beyond.

Reference: SHA250723

Request a viewing for this property

Simply fill out the form below or alternatively call us on 020 7839 0888

* Mandatory fields