2 Bedroom Upper Floor Flat
£295,000
Mount Florida, Glasgow

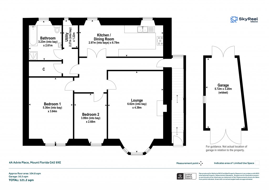
Floorplans For Mount Florida, Glasgow
EPC Graph for Mount Florida, Glasgow}

Description


A fabulous and quite unique main door upper conversion with private garden space to the front and rear, situated in this quiet yet convenient pocket of Mount Florida. The property is approached via pathway leading to your own main door entrance, with internal staircase leading to the main body of the property. The accommodation comprises reception hallway, stunning bay windowed lounge with intricate cornicing and feature fireplace, impressive dining sized kitchen with a range of base mounted units, shelving, tiled splashback and ample space for dining table with aspect out to the rear garden, double sized bedroom one with cornicing, second double sized bedroom that could easily be utilised as a home office or study, impressive tiled bathroom with white three piece suite and separate walk-in shower, large cupboard off the internal hallway and useful utility room. The property also benefits from double glazing, gas central heating, high quality floor coverings and a modern, contemporary decor throughout. Externally there is a private rear garden space with separate patio and lawn, along with impressive front garden. There is also a garage that is currently set up as a home gym. Advie Place is situated in Mount Florida which has an impressive number of local amenities and transport links. These include independent shops, art studio and popular restaurants and eateries including the likes of Cafe Salmagundi, Bucks Bar and Hooked. As well as frequent bus and rail services, Mount Florida is extremely well placed for commuting access to the M77 and M8. The beautiful Queens Park is nearby, which hosts a number of community events throughout the year and has a tennis club, glasshouses and extensive views across the city and beyond.

Reference: SHA250722

Request a viewing for this property

Simply fill out the form below or alternatively call us on 020 7839 0888

* Mandatory fields