4 Bedroom Upper Floor Flat
£395,000
Langside, Glasgow

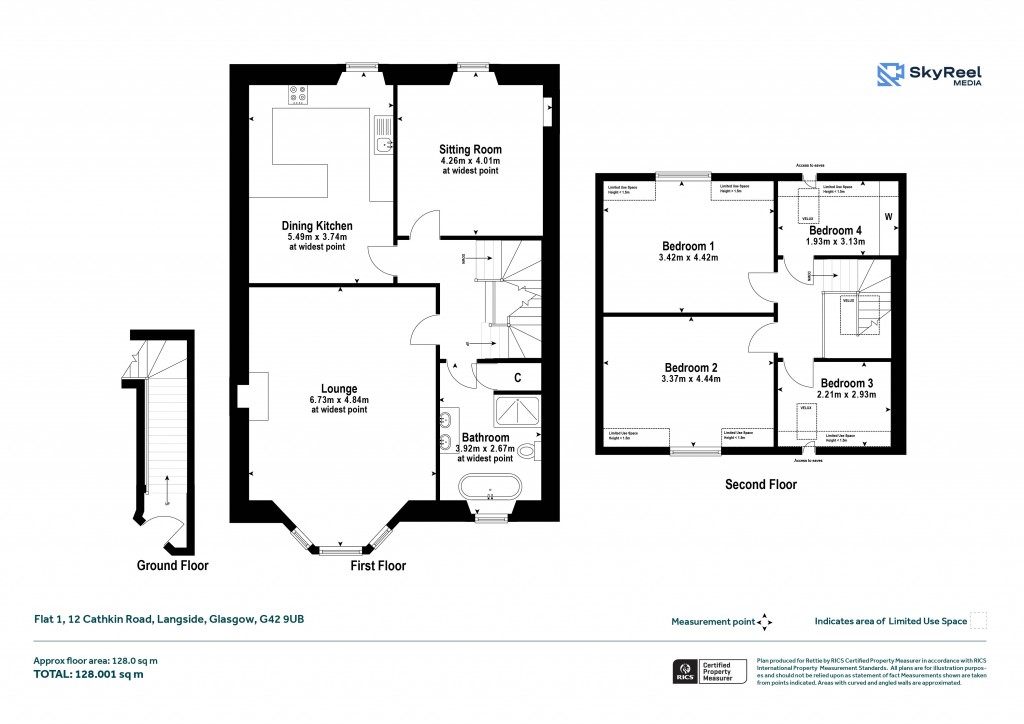
Floorplans For Langside, Glasgow
EPC Graph for Langside, Glasgow}

Description


A beautiful and rarely available double upper conversion with private rear garden space, situated in this quiet yet convenient pocket of Langside. The property is approached via pathway leading to the communal entrance with access to the property on the right. The accommodation of the flat itself comprises private stairwell, leading to the first floor landing, stunning bay windowed with cornicing and feature fireplace, expansive dining kitchen with a range of integrated appliances, base and wall mounted units, breakfast bar and ample space for dining table and chairs, sitting room that could easily be utilised as a home office or an additional bedroom and fabulous tiled bathroom with twin wash hand basin, standalone bath and separate walk-in shower. Upstairs there are two generously sized double bedrooms and two single bedrooms, one of which is utilised as a home office and another used as a dressing room. The property also benefits from double glazing, gas central heating, high quality floor coverings, a range of period features and a modern, contemporary decor throughout. Externally there is a private rear garden space that has separate lawn and patio space. Langside is an immensely popular area in the Southside of Glasgow with a range of nearby transport links, amenities and schooling, with Battlefield Primary School at the end of the street and Queens Park only around the corner. Shawlands and Strathbungo are both within walking distance and the area offers a wide selection of local shops, salubrious bars, restaurants and cafes.

Reference: SHA250719

Request a viewing for this property

Simply fill out the form below or alternatively call us on 020 7839 0888

* Mandatory fields