1 Bedroom First Floor Flat
£170,000
Shawlands, Glasgow

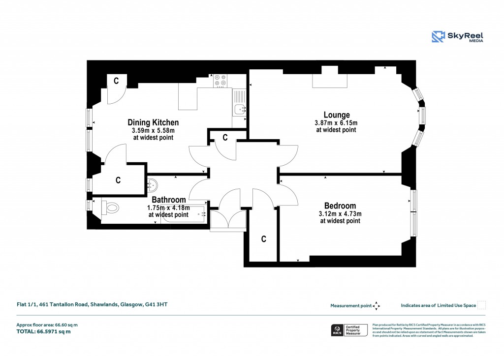
Floorplans For Shawlands, Glasgow
EPC Graph for Shawlands, Glasgow}

Description


A beautiful one bedroomed flat with dining sized kitchen situated positioned on the first floor of this blonde sandstone tenement building. The building is accessed via secure door entry system into a well-kept communal close. The accommodation of the flat itself comprises welcoming reception hallway with two cupboards off, bay windowed lounge with cornicing, refurbished floorboards and feature fireplace, dining sized kitchen with a range of base and wall mounted units, breakfast bar, ample space for dining table and chairs and utility cupboard off, double sized bedroom with refurbished floorboards and cornicing and tiled bathroom with white three piece suite and heated towel rail. The property also benefits from double glazing, gas central heating, high quality floor coverings and a modern, contemporary decor throughout. Externally there is a communal rear garden. Shawlands is considered by many to be the "brunch capital" of Glasgow. While the brunch spots are excellent and numerous, there are also a wide range of other amenities including restaurants, bars, parks and much more. This flat is perfectly situated to enjoy everything that Shawlands has to offer, including Queens Park at the end of the street as well as excellent transport links with Langside, Shawlands & Pollokshaws East a short walk away.

Reference: SHA250633

Request a viewing for this property

Simply fill out the form below or alternatively call us on 020 7839 0888

* Mandatory fields