3 Bedroom Terraced House
£315,000
Cathcart, Glasgow

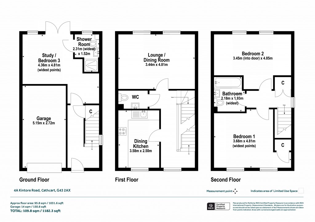
Floorplans For Cathcart, Glasgow
EPC Graph for Cathcart, Glasgow}

Description


A beautiful end terraced townhouse offering generous accommodation over three levels. Approached via driveway and front lawn leading to the front door. The accommodation of the house itself comprises welcoming reception hallway with hardwood herringbone flooring with understairs cupboard off, third bedroom that is currently utilised as a study with hardwood herringbone flooring and double door access out to the rear garden and a tiled shower room off with white two piece suite and walk-in shower. The first floor comprises spacious lounge/dining room with open aspect to the rear, modern kitchen with a range of integrated appliances, base and wall mounted units and herringbone flooring and a W.C. with white two piece suite. The top floor comprises two generous, double sized bedrooms and a gorgeous tiled bathroom with white three piece suite and heated towel rail. The property also benefits from double glazing, gas central heating, high quality floor coverings and a modern, contemporary decor throughout. Externally there is the aforementioned front lawn and driveway, along with a fabulous landscaped rear garden with separate patio and lawn. Situated within the highly desirable south side locale, the property is well located for local amenities with a variety of shops on Newlands Road and Clarkston Road. Nearby areas such as Shawlands and Strathbungo offer a more diverse range of facilities including supermarkets, bars and restaurants. The area benefits from frequent public transport services by both bus and rail connecting Newlands with Glasgow City. Please note: we are required under the Estate Agents Act 1979, and the provision of information regulations 1991, to point out that the client we are acting for on the sale of this property is a ‘connected person' as defined by the act.

Reference: SHA250545

Request a viewing for this property

Simply fill out the form below or alternatively call us on 020 7839 0888

* Mandatory fields