4 Bedroom Detached House
£500,000
Newlands, Glasgow

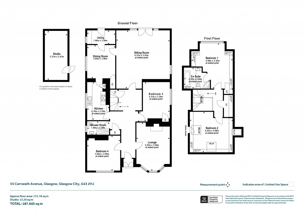
Floorplans For Newlands, Glasgow
EPC Graph for Newlands, Glasgow}

Description


A beautiful and quite rare detached bungalow situated in this quiet pocket of Newlands. Offering generous and flexible accommodation over two levels, this impressive detached home is a must for viewing in order to be appreciated. The house is approached via driveway and path, flanked by front garden, leading to double storm doors and entrance vestibule. The accommodation of the house itself comprises welcoming reception hallway with two cupboards off, spacious sitting room with dual aspects, feature wall and double door access out to the rear garden, kitchen with a range of integrated appliances, base and wall mounted units, tiled splashback and granite worktop, dining room, utility room with access out to the garden and bay windowed lounge with feature fireplace. There are two bedrooms, both of which can be utilised very flexibly as a home office or dressing room and gorgeous tiled shower room with two piece suite, heated towel rail and separate walk-in shower enclosure. Upstairs there is a delightful bedroom one with tiled en-suite bathroom off with white three piece suite and separate shower enclosure and a second double sized bedroom. The property also benefits from double glazing, gas central heating, high quality floor coverings and a modern, contemporary decor throughout. Externally there is the aforementioned driveway and front garden, along with a landscaped rear garden with separate lawn and patio. Additionally there is also a sound proofed studio which can be utilised as such or as a home office space. Newlands is a beautiful suburb situated in the south of Glasgow. It is one of the most popular suburban areas to be found anywhere in Scotland. This is down to its quiet ambience, popular park, and range of nearby amenities in Giffnock, Shawlands and Pollokshields. There are also excellent transport links nearby via bus road and rail to the centre of Glasgow and elsewhere. Langside, Muirend and Pollokshaws East Train Stations which provides regular services to and from Glasgow Central is a short walk away.

Reference: SHA250484

Request a viewing for this property

Simply fill out the form below or alternatively call us on 020 7839 0888

* Mandatory fields