1 Bedroom Upper Floor Flat
£180,000
Queens Park

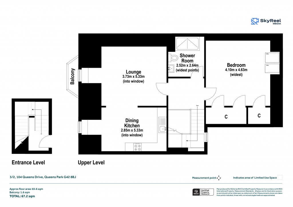
Floorplans For Queens Park
EPC Graph for Queens Park}

Description


Set on the top floor of a traditional sandstone tenement overlooking Queens Park, this bright and generously proportioned one-bedroom flat offers an excellent opportunity to acquire a stylish home in one of Glasgow’s most sought-after Southside locations. With a spacious internal layout, attractive period features, and a private balcony, the property offers a well-balanced and characterful home in a prime Southside setting. A welcoming entrance hallway leads to an impressive lounge, a superbly sized room with large windows that draw in natural light and offer open views toward the park. Directly adjacent is the spacious dining kitchen, providing ample room for cooking, dining, and entertaining, along with generous worktop and storage space. From the lounge, a private balcony, creating an ideal spot to enjoy the park outlook. The accommodation includes a substantial double bedroom, enhanced by excellent floor space and built-in wardrobes. The shower room is fitted with a modern suite, offering a bright and practical space. Further benefits include gas central heating, single glazing, and secure door entry. Located directly opposite Queens Park, the property is ideally placed for access to a wide range of cafés, restaurants, bars, and independent shops in both Shawlands and Strathbungo. Excellent public transport links are available via nearby Crosshill and Queens Park train stations, along with regular bus services along Victoria Road and Pollokshaws Road.

Reference: SHA250120

Request a viewing for this property

Simply fill out the form below or alternatively call us on 020 7839 0888

* Mandatory fields